
EHL Immobilien GmbH
Frau Ilse Reindl
+43 ···
Nr. anzeigenPreise & Kosten
Provision für Käufer
3% des Kaufpreises zzgl. 20% USt.
Das Haus
Kategorie
Doppelhaushälfte
Baujahr
2028
Bezug
1. Quartal 2028
Energie & Heizung
Warum sehe ich diese Anzeige? – Du siehst diese Anzeige basierend auf Ihrer Navigation auf unserer Website und den Suchkriterien, die du verwendet hast.
Heizwärmebedarf (HWB)
39,80 kWh/(m²·a)
Gesamtenergieeffizienz (fGEE)
0,57
Weitere Energiedaten
Energieträger
Erdwärme
Heizungsart
Fußbodenheizung
Details
Objektbeschreibung
Wittgenstein 23 - Villenflair zwischen Hietzing und Mauer
Die Wittgensteinstraße zählt zu den klassischen Wiener Villenstraßen und verbindet Rosenhügelstraße mit Speisingerstraße. Hier treffen Hietzings Flair und das Grün von Mauer aufeinander. Die Umgebung besticht durch großzügige Gärten, alte Bäume und detailreiche...
Weitere Informationen
Stichworte
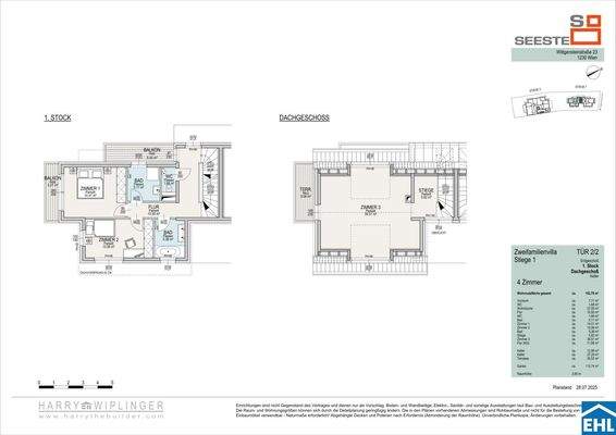
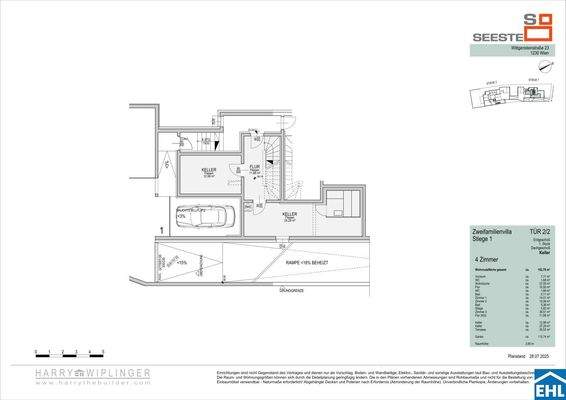
Stellplatz vorhanden, Süd-Süd-West-Balkon/Terrasse, Fahrradraum, Anzahl der Badezimmer: 3, Anzahl der separaten WCs: 3, Anzahl Balkone: 2, Anzahl Terrassen: 2, Balkon-Terrassen-Fläche: 44,09 m², Gartenfläche: 115,74 m², Kellerfläche: 37,27 m², Bundesland: Wien
Dokumente
Anbieter der Immobilie
EHL Immobilien GmbH
Prinz-Eugen-Straße 8-10, 1040 WIEN
Online-ID: 2msdt54
Referenznummer: OBGC20251030105425678ba5a245596
Finde Angebote wie dieses
Günstige Immobilienfinanzierung einfach online berechnen
Persönliches Angebot berechnenWarum sehe ich diese Werbung? – Du siehst diese Werbung basierend auf Deiner Navigation auf unserer Website und der von Dir verwendeten Suchkriterien.
Diese Werbung wird bezahlt von durchblicker
Werbung melden
Hier geht es zu unserem Impressum, den Allgemeinen Geschäftsbedingungen, den Hinweisen zum Datenschutz und nutzungsbasierter Online-Werbung.