
Alexander Göbel Immobilien
Herr Alexander Göbel
030 ···
Nr. anzeigenPreise & Kosten
Provision für Käufer
3,57 % (inkl. gesetzl. MwSt.) vom Kaufpreis
Die Außenprovision ist bei notariellem Vertragsabschluss verdient und fällig und vom Käufer an Alexander Göbel Immobilien zu zahlen. Weitere Informationen siehe Provisionshinweis.
Abschreibung/Anlage
Denkmalschutz-Afa
Lage
Das Wohngebäude liegt im familienfreundlichen Bezirk Berlin-Tempelhof, nahe der U-Bahnstation Kaiserin-Augusta-Straße der Linie U6. Nur vier Stationen entfernt, befindet sich der U-Bahnhof "Platz der Luftbrücke" des ehemaligen Flughafens Berlin-Tempelhof. Hier gibt es einen der zahlreichen Zugänge zur Freifläche des...
Die Wohnung
Wohnungslage
2. Geschoss
Bezug
nach Vereinbarung
Derzeitige Nutzung
vermietet
Wohnanlage
Energie & Heizung
Warum sehe ich diese Anzeige? – Du siehst diese Anzeige basierend auf Ihrer Navigation auf unserer Website und den Suchkriterien, die du verwendet hast.
Energieausweis: für diesen Gebäudetyp nicht notwendig
Weitere Energiedaten
Energieträger
Gas
Heizungsart
Zentralheizung
Details
Objektbeschreibung
Das gepflegte Mehrfamilienwohnhaus unterliegt regelmäßigen Instandhaltungen, wurde laut Energieausweis 1926 errichtet und befindet sich in Berlin-Tempelhof, dort im Kreuzungsbereich einer ruhigen Nebenstraße und einer Hauptstraße, unweit des Tempelhofer Damms und einiger Naherholungsgebiete.
Aufgrund des vorhandenen...
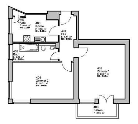
Ausstattung
- geräumige Küche mit Einbaumöbeln (Vermietereigentum)
- Wannenbad mit Fenster
- Wohnzimmer mit Balkon
- Schlafzimmer
- Flur
- Speisekammer
- abgezogene Dielenfußböden in allen Räumen und Fliesenbelag im Bad und der Küche
-...
Weitere Informationen
Provisionshinweis
3,57 % (inkl. gesetzl. MwSt.) vom Kaufpreis
Die Außenprovision ist bei notariellem Vertragsabschluss verdient und fällig und vom Käufer an Alexander Göbel Immobilien zu zahlen. Eine gleiche Provisionsvereinbarung (Innenprovision) ist gem. § 656 c BGB mit dem Verkäufer getroffen worden (Verkäufer zahlt...
Anbieter der Immobilie
Alexander Göbel Immobilien
Wolframstraße 82, 12105 Berlin
Online-ID: 2msf25j
Referenznummer: 517
Finde Angebote wie dieses
Hier geht es zu unserem Impressum, den Allgemeinen Geschäftsbedingungen, den Hinweisen zum Datenschutz und nutzungsbasierter Online-Werbung.