
ohne-makler.net - Immobilien selbst vermarkten
Privat von Peter W.
Kontaktiere den Anbieter schriftlich, es ist keine Telefonnummer hinterlegt.
Preise & Kosten
Provision für Käufer
provisionsfrei
Lage
Markantes Gebäude in zentraler, verkehrsberuhigter Lage.
Attraktiv gelegen am Rande des Naturparks Schönbuch als auch in Nähe zu Städten wie Stuttgart, Sindelfingen, Böblingen oder Tübingen.
Schönaich ist die 750 Jahre junge und prosperierende Gemeinde im Kreis Böblingen mit über 10.000 Einwohnern.
Bushaltestelle...
Das Haus
Kategorie
Einfamilienhaus
Baujahr
1924
Bezug
sofort
Energie & Heizung
Warum sehe ich diese Anzeige? – Du siehst diese Anzeige basierend auf Ihrer Navigation auf unserer Website und den Suchkriterien, die du verwendet hast.
Energieausweistyp
Bedarfsausweis
Gebäudetyp
Wohngebäude
Effizienzklasse
C
Endenergiebedarf
87,00 kWh/(m²·a)
Weitere Energiedaten
Energieträger
Elektro
Details
Objektbeschreibung
Provisionsfrei - sofort beziehbar!
Angeboten wird ein kompaktes, geräumiges und gepflegtes Wohn- und Geschäftshaus in der Mitte Schönaichs.
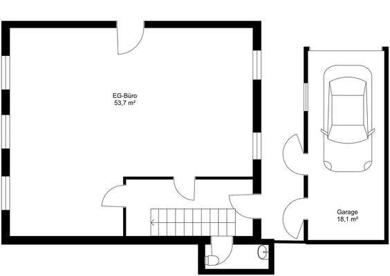
EG als Ladengeschäft, Praxis, Büro, Bistro u.ä. nutzbar.
Wohnfläche 124 qm. EG-Büro 55 qm.
Keller-Nutzraum 50 qm sowie Garage mit 20 qm.
Ausstattung
Terrasse, Keller, Vollbad, Duschbad, Einbauküche, Laminat, Teppichboden
Bemerkungen:
Die Wohnräume befinden sich im 1. und 2. OG. Zusätzlich ist das isolierte DG mit Echtholz gemütlich ausgebaut und mit hellen Dachflächenfenstern ausgestattet.
Das helle EG (55 qm, Höhe 2,90 m) wird seit jeher als attraktive...
Preisinformation
1 Garagenstellplatz
Weitere Informationen
Sonstiges
Heizungsart: Sonstiges (s. Text)
Energieträger: Strom
Makleranfragen nicht erwünscht. Nach § 7 UWG sind unaufgeforderte Kontaktaufnahmen durch Makler ohne ausdrückliche Einwilligung des Empfängers verboten!
ohne-makler (OM) ist weder Anbieter noch Vermittler der Immobilie. OM betreibt eine...
Dokumente
Anbieter der Immobilie
ohne-makler.net - Immobilien selbst vermarkten
Humboldtstr. 25 A, 21509 Glinde
Privat von Peter W.
Dein Ansprechpartner
Kontaktiere den Anbieter schriftlich, es ist keine Telefonnummer hinterlegt.
Online-ID: 2msgf5f
Referenznummer: 375178
Finde Angebote wie dieses
Hier geht es zu unserem Impressum, den Allgemeinen Geschäftsbedingungen, den Hinweisen zum Datenschutz und nutzungsbasierter Online-Werbung.