
Immobilienservice Nagler
Herr Andreas Nagler
037 ···
Nr. anzeigenPreise & Kosten
Kaution
2 Monatskaltmieten
Provision für Mieter
provisionsfrei
Warum sehe ich diese Anzeige? – Du siehst diese Anzeige basierend auf Ihrer Navigation auf unserer Website und den Suchkriterien, die du verwendet hast.
Lage
Frankenberg, in wenigen Minuten Anschluss zur BAB 4 erreichbar
Büro-/Praxisfläche
Derzeitige Nutzung
frei
Geschoss
1. Geschoss
Energie & Heizung
Warum sehe ich diese Anzeige? – Du siehst diese Anzeige basierend auf Ihrer Navigation auf unserer Website und den Suchkriterien, die du verwendet hast.
Wärme
Strom
Energieausweistyp
Verbrauchsausweis
Gebäudetyp
Nicht-Wohngebäude
Baujahr laut Energieausweis
1934
Wesentliche Energieträger
Erdgas
Endenergieverbrauch (Wärme)
83,00 kWh/(m²·a) - Warmwasser enthalten
Endenergieverbrauch (Strom)
14,00 kWh/(m²·a) - Warmwasser enthalten
Weitere Energiedaten
Heizungsart
Zentralheizung
Details
Objektbeschreibung
Objektbeschreibung
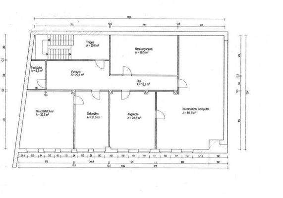
Hierbei handelt es sich um eine ca. 238 m² große Bürofläche im 1. OG eines Bürogebäudes in Frankenberg. Die gesamte Fläche kann noch mit neuem Fußbodenbelag ausgestattet werden. Das Büro besteht derzeit aus fünf Räumen. Durch Einbau einer Trennwand könnten sechs Zimmer entstehen. Weiterhin ist eine...
Weitere Informationen
Besichtigungstermine
Gern beantworte ich Ihre Fragen oder ermögliche Ihnen einen Besichtigungstermin. Sie erreichen mich unter der Rufnummer 0371 / 57 39 87 66.
Stichworte
Serviceleistungen: Hausmeister
Sonstiges: Getrennte Damen- und Herren-WCs
Anbieter der Immobilie
Immobilienservice Nagler
Fürstenstr. 28, 09130 Chemnitz
Online-ID: 2msjg5c
Referenznummer: J-59-F-B.
Finde Angebote wie dieses
Hier geht es zu unserem Impressum, den Allgemeinen Geschäftsbedingungen, den Hinweisen zum Datenschutz und nutzungsbasierter Online-Werbung.