
Steindorff Immobilien GmbH
Herr Elmar Dolc-Eckstein
066 ···
Nr. anzeigenPreise & Kosten
Provision für Käufer
3 % zzgl. 20% MwSt.
Lage
Die Liegenschaft liegt in Niederschöckl, einem beliebten Ortsteil der Gemeinde Weinitzen, nur wenige Kilometer von Graz-Mariatrost oder Andritz entfernt.
Die Eggerstraße ist eine ruhige Anliegerstraße mit sehr geringem Verkehr. Von der etwas tiefer liegenden Niederschöcklstraße zur "rush hour" gelegentlich leichter...
Das Haus
Kategorie
Einfamilienhaus
Baujahr
1955
Bezug
nach Vereinbarung
Energie & Heizung
Warum sehe ich diese Anzeige? – Du siehst diese Anzeige basierend auf Ihrer Navigation auf unserer Website und den Suchkriterien, die du verwendet hast.
Heizwärmebedarf (HWB)
168,00 kWh/(m²·a)
Gesamtenergieeffizienz (fGEE)
2,17
Weitere Energiedaten
Energieträger
Öl
Heizungsart
Zentralheizung
Details
Objektbeschreibung
Großzügiges, modernes Einfamilienhaus mit Schwimmteich in Weinitzen, vereint ländliche Geborgenheit mit zeitgemäßem Wohnkomfort
Kaufpreis: € 698-500,-- (Haus mit Grundstück 260/7, ohne zusätzliches Baugrundstück 260/8)**
Optional: Baugrundstück 260/8 mit 1.185 m² kann zusätzlich um € 120.000,-- erworben...
Ausstattung
Großzügiges Wohnhaus mit zwei Vollgeschossen und zwei Kellern
Schwimmteich mit Natursteinumrandung
Großes, sonniges Grundstück mit Erweiterungsmöglichkeit
Fußbodenheizung in allen verfliesten Räumen (Vorraum, Flure, Bäder, WC's, Saunabereich)
Schwedenofen im Saunabereich für zusätzliche Gemütlichkeit
riesige...
Preisinformation
Verhandlungsbasis
Weitere Informationen
Stichworte
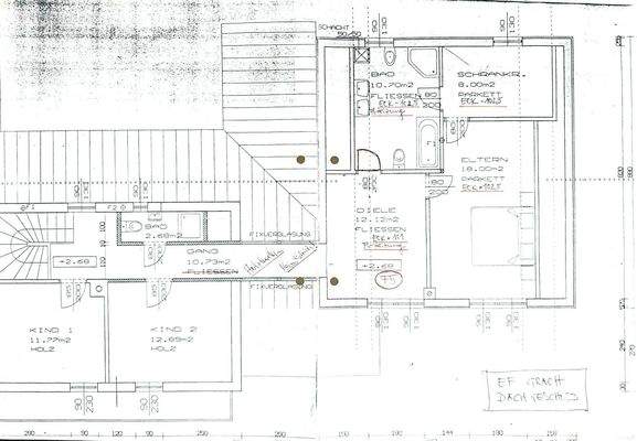
Garage vorhanden, Gesamtfläche: 376,71 m², Sonstige Fläche: 57,85 m², Anzahl der Badezimmer: 2, Anzahl der separaten WCs: 2, Anzahl Balkone: 1, Balkon-Terrassen-Fläche: 93,10 m², Kellerfläche: 111,50 m², Bundesland: Steiermark, 1 Etagen, modernisiert: 1998
Anbieter der Immobilie
Steindorff Immobilien GmbH
Albert Schweitzer Gasse 8, 8020 GRAZ
Online-ID: 2msl95a
Referenznummer: O2100166818
Finde Angebote wie dieses
Günstige Immobilienfinanzierung einfach online berechnen
Persönliches Angebot berechnenWarum sehe ich diese Werbung? – Du siehst diese Werbung basierend auf Deiner Navigation auf unserer Website und der von Dir verwendeten Suchkriterien.
Diese Werbung wird bezahlt von durchblicker
Werbung melden
Hier geht es zu unserem Impressum, den Allgemeinen Geschäftsbedingungen, den Hinweisen zum Datenschutz und nutzungsbasierter Online-Werbung.