
morespace real estate gmbh
Herr Manuel Hennings
004 ···
Nr. anzeigenPreise & Kosten
Provision für Mieter
Bitte beachte, das Angebot kann bei Vertragsabschluss die Zahlung einer Provision beinhalten. Weitere Informationen erhältst Du vom Anbieter.
Warum sehe ich diese Anzeige? – Du siehst diese Anzeige basierend auf Ihrer Navigation auf unserer Website und den Suchkriterien, die du verwendet hast.
Lage
Die Büroeinheit befindet sich im Herzen von Berlin-Lichterfelde im Bezirk Steglitz-Zehlendorf mit idealer Verkehrsanbindung.Viele Cafés, Tagesgeschäfte, Supermärkte sind nur einen Katzensprung entfernt.
The office unit is located in the heart of Berlin-Lichterfelde in the Steglitz-Zehlendorf district with ideal...
Büro-/Praxisfläche
Kategorie
Bürofläche
Baujahr
1915
Bezug
nach Absprache
Geschoss
2. Geschoss
Energie & Heizung
Warum sehe ich diese Anzeige? – Du siehst diese Anzeige basierend auf Ihrer Navigation auf unserer Website und den Suchkriterien, die du verwendet hast.
Weitere Energiedaten
Heizungsart
Zentralheizung
Details
Objektbeschreibung
Im Herzen von Berlin-Lichterfelde im Bezirk Steglitz-Zehlendorf bilden unsere Immobilien am Kranoldplatz 3-6/Lankwitzer Str 25-26 und an der Ferdinandstr. 31-35 ein städtisches Quartier mit hochwertigen Einzelhandels-, Büro und Wohnflächen.Die attraktive Mietfläche befindet sich im Gebäude des ehemaligen Stellwerks LIO direkt...
Ausstattung
Urban
Flexibel
Effizient
Ausbau nach Mieterwunsch
Wintergarten
Terrasse
Historisch
XXXXXXXX
Urban
Flexible
Efficient
Expansion according to tenant wishes
Winter garden
Terrace
Historic
Weitere Informationen
Sonstiges
Folgende Flächen können wir anbieten:
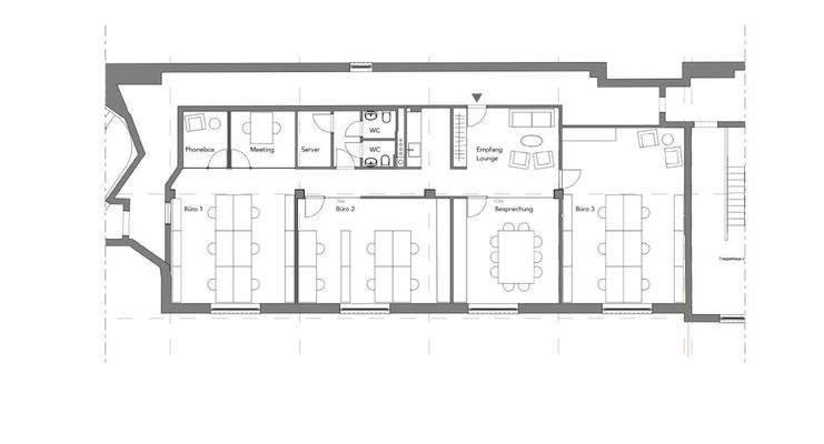
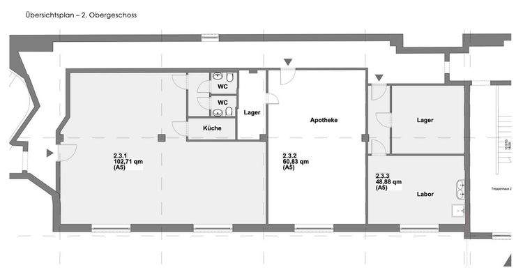
- 2. OG mit 255,03 qm
We can offer the following spaces:
- 2nd floor with 255.03 sqm
Stichworte
Bundesland: Berlin
Sonstiges: EDV-Verkabelung
Anbieter der Immobilie
Online-ID: 2msqa5y
Referenznummer: MS2573
Finde Angebote wie dieses
Hier geht es zu unserem Impressum, den Allgemeinen Geschäftsbedingungen, den Hinweisen zum Datenschutz und nutzungsbasierter Online-Werbung.