
horta Immobilien GmbH & Co. KG
Team Vermietungs- Team
Kontaktiere den Anbieter schriftlich, es ist keine Telefonnummer hinterlegt.
Preise & Kosten
Kaution
3.870,00
Warum sehe ich diese Anzeige? – Du siehst diese Anzeige basierend auf Ihrer Navigation auf unserer Website und den Suchkriterien, die du verwendet hast.
Lage
Die Wohnung liegt in einer ruhigen, beliebten Wohngegend im Stadtteil Staad, nur wenige Minuten vom Konstanzer Stadtzentrum entfernt. Einkaufsmöglichkeiten, Cafés, Restaurants und öffentliche Verkehrsmittel sind bequem erreichbar.
Die Umgebung besticht durch grüne Flächen, eine angenehme Nachbarschaft und kurze Wege...
Die Wohnung
Wohnungslage
2. Geschoss (Dachgeschoss)
Bezug
01.02.2026
Wohnanlage
Energie & Heizung
Warum sehe ich diese Anzeige? – Du siehst diese Anzeige basierend auf Ihrer Navigation auf unserer Website und den Suchkriterien, die du verwendet hast.
Energieausweistyp
Verbrauchsausweis
Gebäudetyp
Wohngebäude
Baujahr laut Energieausweis
1970
Wesentliche Energieträger
Öl
Gültigkeit
04.09.2023 bis 03.09.2033
Effizienzklasse
D
Endenergieverbrauch
125,20 kWh/(m²·a) - Warmwasser enthalten
Weitere Energiedaten
Energieträger
Öl
Heizungsart
Zentralheizung
Details
Objektbeschreibung
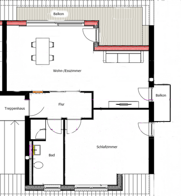
Die angebotene 2-Zimmer-Wohnung mit ca. 65 m² Wohnfläche befindet sich im Dachgeschoss eines gepflegten Wohnhauses und wurde 2025 umfassend saniert. Sie präsentiert sich in einem modernen, zeitgemäßen Zustand und überzeugt durch eine durchdachte Raumaufteilung.
Das helle Tageslichtbad ist hochwertig ausgestattet und...
Ausstattung
In den Wohnräumen ist Parkettboden verlegt, der für eine warme und wohnliche Atmosphäre sorgt. Das Badezimmer ist mit zeitlosen Fliesen ausgestattet. Das moderne Tageslichtbad verfügt über eine ebenerdige Dusche, WC sowie einen Waschmaschinenanschluss. Die Einbauküche ist ebenfalls neu und mit allen gängigen Elektrogeräten...
Weitere Informationen
Sonstiges
Alle genannten Angaben zum Objekt beruhen auf den Angaben des Eigentümers. Wir bitten um Ihr Verständnis, dass nur schriftliche Anfragen mit vollständiger Adresse, sowie Telefonnummer bearbeitet werden können. Wir weisen darauf hin, dass bei Abschluss eines Mietvertrages die Vertragsbeteiligten auf die Ausübung...
Dokumente
Anbieter der Immobilie
horta Immobilien GmbH & Co. KG
Mainaustr. 32, 78464 Konstanz
Team Vermietungs- Team
Dein Ansprechpartner
Kontaktiere den Anbieter schriftlich, es ist keine Telefonnummer hinterlegt.
Online-ID: 2msql5v
Referenznummer: 4566
Finde Angebote wie dieses
Hier geht es zu unserem Impressum, den Allgemeinen Geschäftsbedingungen, den Hinweisen zum Datenschutz und nutzungsbasierter Online-Werbung.