team19 Immobilien GmbH

Frau Silva Baghramian

Modernes Wohnen in Floridsdorf: Neubau in grüner Oase - Nähe Aupark-Jedlesse! - JETZT ZUSCHLAGEN

€ 370.800,67
Kaufpreis
58,25 m²
Wohnfläche ca.
3
Zimmer
Finanzierung berechnen mit durchblicker

Der Anbieter dieses Objekts hat gegenüber der AVIV Germany GmbH als Betreiber dieses Online-Marktplatzes erklärt, nicht als Unternehmer im Sinne des § 1 KSchG zu handeln. Die im Verbraucherschutzrecht der Union verankerten Verbraucherrechte (insbesondere Informationspflichten und Rücktritts- bzw. Widerrufsrechte) finden auf den Vertrag zwischen dem Anbieter des Objekts und Ihnen (dem Interessenten) keine Anwendung.

Gewerblicher Anbieter

Der Anbieter dieses Objekts hat gegenüber der AVIV Germany GmbH als Betreiber dieses Online-Marktplatzes erklärt, als Unternehmer im Sinne des § 1 KSchG zu handeln.

AdresseChristian-Bucher-Gasse 15
1210 Wien 
(Floridsdorf)
Auf Karte ansehen

Preise & Kosten

Kaufpreis € 370.800,67

Provision für Käufer

provisionsfrei

Lage

Aupark-Jedlesse, Donauinsel, Alte Donau, Pragerstraße, U6 - Floridsdorf

Die Wohnung

Wohnungslage

1. Geschoss

Bezug

ab sofort

  • Bad mit Dusche
  • Loggia
  • Einbauküche
  • Böden: Parkett
  • Zustand: Erstbezug
  • voll klimatisiert

Wohnanlage

  • Baujahr: 2023
  • Zustand: Neubau
  • Personenaufzug

Energie & Heizung

Heizwärmebedarf (HWB)

B

28,90 kWh/(m²·a)

Gesamtenergieeffizienz (fGEE)

A

0,78

Weitere Energiedaten

Heizungsart

Fußbodenheizung, Luft-/Wasser-Wärmepumpe, Zentralheizung

Details

Objektbeschreibung

Exklusives Wohnen in Floridsdorf: Neubau in ruhiger Grünlage mit erstklassiger Ausstattung und Top-Anbindung

 

Modernes Wohnen für höchste Ansprüche - Ihr Traumhaus im Grünen

Erleben Sie modernen Erstbezug in einer begehrten Lage im Herzen von Floridsdorf. Das neu entstehende Projekt bietet Ihnen...

Mehr anzeigen

Weitere Informationen

Stichworte
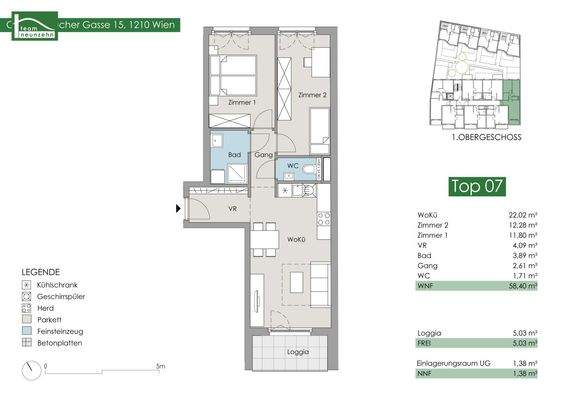
Tiefgarage vorhanden, Nord-Ost-Balkon/Terrasse, Fahrradraum, Rolladen, Nutzfläche: 63,20 m², Gesamtfläche: 63,43 m², Freifläche: 5,03 m², Anzahl der Badezimmer: 1, Anzahl der separaten WCs: 1, Anzahl Loggias: 1, Balkon-Terrassen-Fläche: 4,77 m², Bundesland: Wien, Wohnungsnr.: 7

Sonstiges: Neubaustandard

Anbieter der Immobilie

Partner

team19 Immobilien GmbH

im Durchschnitt  4,20  Sterne
(bei 2 Bewertungen)

Handelskai 94-96/44. Stock, 1200 BRIGITTENAU

user

Frau Silva Baghramian

Dein Ansprechpartner

Anbieter-Website Anbieter-Profil Anbieter-Impressum

Online-ID: 2mssf5q

Referenznummer: OBGC20251215133004989864e9f1af0

Finde Angebote wie dieses

imageimageimage

Günstige Immobilienfinanzierung einfach online berechnen

Persönliches Angebot berechnen

Hier geht es zu unserem Impressum, den Allgemeinen Geschäftsbedingungen, den Hinweisen zum Datenschutz und nutzungsbasierter Online-Werbung.