
Marko Künne Immobilien
034 ···
Nr. anzeigenPreise & Kosten
Provision für Käufer
provisionsfrei
Lage
Leipzig blickt auf eine lange und historisch wertvolle Geschichte zurück. Vor über 1.000 Jahren begann die Stadt am Kreuzungspunkt der wichtigsten Handelswege zu existieren. Viele bedeutende Ereignisse sind untrennbar mit dem Namen Leipzig verbunden. Heute präsentiert sich die Stadt als dynamische Wirtschafts- und...
Die Wohnung
Wohnungslage
Erdgeschoss
Wohnanlage
Energie & Heizung
Warum sehe ich diese Anzeige? – Du siehst diese Anzeige basierend auf Ihrer Navigation auf unserer Website und den Suchkriterien, die du verwendet hast.
Energieausweistyp
Bedarfsausweis
Gebäudetyp
Wohngebäude
Gültigkeit
16.04.2025 bis 16.04.2035
Endenergiebedarf
18,00 kWh/(m²·a)
Details
Objektbeschreibung
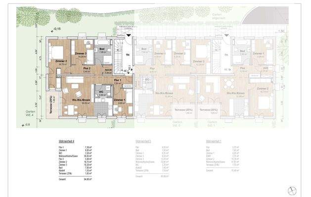
Zum Verkauf steht eine 92,30 m² große 4-Zimmer-Wohnung im modernen Landhausstil-Neubauprojekt "Sonnenhof" im Leipziger Stadtteil Holzhausen. Das Gebäude fügt sich harmonisch in die umliegende Bebauung ein und sticht dennoch durch seine schlichte, aber ansprechende Architektur hervor.
Erleben Sie das harmonische...
Preisinformation
7 Tiefgaragenstellplätze, Kaufpreis je: 29.000,00 EUR
Nettorendite Soll in %: 4,1
Soll-Mieteinnahmen pro Jahr: 16.614,00 EUR
Weitere Informationen
Sonstiges
Alle Angaben sind ohne Gewähr und basieren ausschließlich auf Informationen, die uns von unserem Auftraggeber zur Verfügung gestellt wurden. Wir übernehmen keine Gewähr für die Vollständig, Richtigkeit und Aktualität dieser Angaben
Stichworte
Tiefgarage vorhanden, Anzahl der Schlafzimmer: 3, Anzahl der...
Anbieter der Immobilie
Online-ID: 2mssh5n
Referenznummer: Hauptstraße 41 WE 04
Finde Angebote wie dieses
Hier geht es zu unserem Impressum, den Allgemeinen Geschäftsbedingungen, den Hinweisen zum Datenschutz und nutzungsbasierter Online-Werbung.