
Immobilien Service Zimmermann Wilhelm Zimmermann GmbH & Co. KG
004 ···
Nr. anzeigenPreise & Kosten
Provision für Käufer
3,5 % des Kaufpreises inkl. Mehrwertsteuer
Lage
Die Immobilie liegt in einer kleinen Seitenstraße, die durch gepflegte Wohnbebauung geprägt ist. Einkaufsmöglichkeiten für den täglichen Bedarf können Sie fußläufig erreichen. Eine große Einkaufsvielfalt finden Sie rund um den Poppenbüttler Markt einschließlich Wochenmarkt sowie im Alstertal Einkaufszentrum. Eine Buslinie...
Das Haus
Kategorie
Mehrfamilienhaus
Baujahr
1971
Bezug
nach Vereinbarung
Energie & Heizung
Warum sehe ich diese Anzeige? – Du siehst diese Anzeige basierend auf Ihrer Navigation auf unserer Website und den Suchkriterien, die du verwendet hast.
Energieausweistyp
Bedarfsausweis
Gebäudetyp
Wohngebäude
Baujahr laut Energieausweis
1971
Wesentliche Energieträger
GAS
Gültigkeit
bis 28.04.2035
Effizienzklasse
F
Endenergiebedarf
179,20 kWh/(m²·a)
Weitere Energiedaten
Energieträger
Gas
Heizungsart
Etagenheizung, offener Kamin
Details
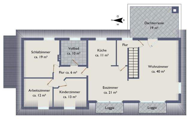
Objektbeschreibung
Dieses charmante Zweifamilienhaus wurde 1954 erbaut und im Laufe der Jahre kontinuierlich erweitert und modernisiert. Es bietet Ihnen die Möglichkeit, das gesamte Haus im aktuellen Zustand oder alternativ eine der beiden Eigentumswohnungen nach WEG zu erwerben, die Abgeschlossenheitsbescheinigung liegt bereits...
Ausstattung
- Separater Eingang mit Windfang und Gäste-WC (wandhängendes WC, Fenster)
- Heller, großzügiger Wohnbereich mit Fensterflächen auf zwei Seiten und Blick in den Garten
- Zugang zur sonnigen Ost-Terrasse sowie zum nachträglich verglasten Freisitz mit Kamin
- Wohnküche mit Platz für einen Esstisch und...
Preisinformation
2 Garagenstellplätze
Weitere Informationen
Sonstiges
Für diese Immobilie wurden wegen der unterschiedlichen Baujahre zwei Energieausweise erstellt:
1. Energiebedarfsausweis:
Baujahr lt. Energieausweis: 1954
Baujahr Wärmeerzeuger: 2000
Energieträger: Gas
Warmwasser: über Etagenheizung
Endenergiebedarf: 215,9 kWh/(m²*a)
Energieeffizienzklasse...
Online-ID: 2mst758
Referenznummer: 2194
Finde Angebote wie dieses
Hier geht es zu unserem Impressum, den Allgemeinen Geschäftsbedingungen, den Hinweisen zum Datenschutz und nutzungsbasierter Online-Werbung.