
immo Kössler KG
Herr Nico Horngacher
004 ···
Nr. anzeigenPreise & Kosten
inkl. Betriebskosten
Kaution
3 Bruttomonatsmieten
Provision für Mieter
lt. Maklerverordnung!
Warum sehe ich diese Anzeige? – Du siehst diese Anzeige basierend auf Ihrer Navigation auf unserer Website und den Suchkriterien, die du verwendet hast.
Lage
Die Amraser Straße ist eine lebendige Geschäftsstraße. Restaurants, der Hofgarten, das Einkaufszentrum Sillpark, Bus- und Straßenbahnstationen befinden sich in nächster Nähe.
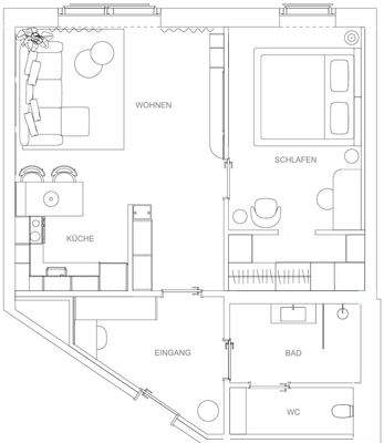
Die Wohnung
Wohnungslage
10. Geschoss
Bezug
01.02.2026
Wohnanlage
Energie & Heizung
Warum sehe ich diese Anzeige? – Du siehst diese Anzeige basierend auf Ihrer Navigation auf unserer Website und den Suchkriterien, die du verwendet hast.
Heizwärmebedarf (HWB)
6,81 kWh/(m²·a)
Weitere Energiedaten
Energieträger
Gas
Heizungsart
Zentralheizung
Details
Objektbeschreibung
Über den Dächern von Innsbruck, im 10. Stock des PEMA II Gebäudes wird diese hochwertig möblierte Wohnung mit einem großzügigen Wohn- und Kochbereich, einem Schlafzimmer, einem Abstellraum und einem Badezimmer mit Infinity-Dusche vermietet. Neben dem Badezimmer befindet sich das separat gehaltene WC. Im Sockel des Hauses ist...
Ausstattung
- Vollholzparkett
- Fußbodenheizung
- Einbauküche
- Geschirrspüler
- Wohnraumlüftung
- elektrische Jalousien
- absolut zentral
- Fahrradabstellraum
- Personenaufzug
Preisinformation
Vertragserrichtung: EUR 400,00 zzgl. 20 % USt., 1 Tiefgaragenstellplatz
Nettokaltmiete: 1.421,58 EUR
Weitere Informationen
Stichworte
Fahrradraum, Anzahl der Schlafzimmer: 1, Anzahl der Badezimmer: 1, Anzahl der separaten WCs: 1, Bundesland: Tirol, 13 Etagen, Distanz zum Kindergarten: 0.34, Distanz zur Grundschule: 0.24, Distanz zur Realschule: 0.70, Distanz zur nächsten Einkaufsmöglichkeit: 0.14, Distanz zum Gymnasium: 0.30, Distanz zum...
Anbieter der Immobilie
immo Kössler KG
Leopoldstraße 2, 6020 INNSBRUCK
Online-ID: 2mstv5d
Referenznummer: 1403
Finde Angebote wie dieses
Hier geht es zu unserem Impressum, den Allgemeinen Geschäftsbedingungen, den Hinweisen zum Datenschutz und nutzungsbasierter Online-Werbung.