

Volkmer Immobilien GmbH & Co. KG
Herr Michael Volkmer
038 ···
Nr. anzeigenPreise & Kosten
Provision für Käufer
3,25 %inkl MwSt inkl. MwSt.
Lage
Bandekow im Amt Boizenburg. Der Ort liegt in der Elbtalaue. Es ist ein Katzensprung zum Fluss Sude. Boizenburg, die nächste Stadt, ist 8 km entfernt. Die wunderschöne Stadt an der Elbe überzeugt durch ihre Sehenswürdigkeiten. So zum Beispiel durch das historische Rathaus von 1712, die Stadtkirche St. Marien, den Fürstengarten...
Das Haus
Baujahr
1996
Energie & Heizung
Warum sehe ich diese Anzeige? – Du siehst diese Anzeige basierend auf Ihrer Navigation auf unserer Website und den Suchkriterien, die du verwendet hast.
Energieausweistyp
Verbrauchsausweis
Gebäudetyp
Wohngebäude
Baujahr laut Energieausweis
1996
Gültigkeit
01.04.2025 bis 01.03.2035
Effizienzklasse
C
Endenergieverbrauch
94,50 kWh/(m²·a)
Weitere Energiedaten
Energieträger
Flüssiggas
Details
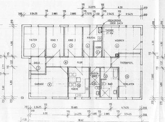
Objektbeschreibung
Attraktives, barrierefreies Einfamilienhaus mit durchdachter Raumaufteilung und großzügiger Wohnfläche von 168 m². Das 5 Zimmer Haus überzeugt durch Komfort, hochwertige Ausstattung und einer gepflegten Liegenschaft. Eine bereits vorhandene Alarmanlage bietet ein hohes Maß an Sicherheit. Die Klimaanlage sorgt im Sommer für...
Weitere Informationen
Stichworte
Rolladen, modernisiert: 2021
Anbieter der Immobilie

Online-ID: 2msty52
Referenznummer: MV 5975
Finde Angebote wie dieses
Hier geht es zu unserem Impressum, den Allgemeinen Geschäftsbedingungen, den Hinweisen zum Datenschutz und nutzungsbasierter Online-Werbung.