
REAS Realitäten Asmus GmbH
REAS Immobilien
+43 ···
Nr. anzeigenPreise & Kosten
Provision für Käufer
3% des Kaufpreises zzgl. 20% USt.
Lage
Brotfabrik Wien, Hauptbahnhof Wien
Das Renditeobjekt
Energie & Heizung
Warum sehe ich diese Anzeige? – Du siehst diese Anzeige basierend auf Ihrer Navigation auf unserer Website und den Suchkriterien, die du verwendet hast.
Weitere Energiedaten
Energieträger
Fernwärme
Heizungsart
Fußbodenheizung
Details
Objektbeschreibung
Verkauft wird ein Paket aus 2 befristet vermieteten Lofts in der Brotfabrik Wien!
In der Brotfabrik Wien wurde den sogenannten "creative industries" ein ganzer Loft-Stadtteil zur Verfügung gestellt. Es gibt Ateliers, Galerien, Büros, Gastronomie und Veranstaltungsräume. Zu den Eigentümern und Mietern zählen zahlreiche...
Preisinformation
1 Garagenstellplatz
Weitere Informationen
Stichworte
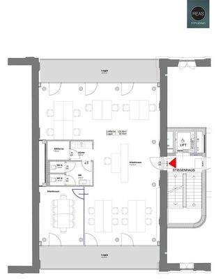
Stellplatz vorhanden, Garage vorhanden, Nord-Süd-Balkon/Terrasse, Nutzfläche: 392,45 m², Bürofläche: 354,26 m², Anzahl der separaten WCs: 4, Anzahl Loggias: 2, Balkon-Terrassen-Fläche: 38,19 m², Bundesland: Wien
Anbieter der Immobilie
REAS Realitäten Asmus GmbH
--, 1130 WIEN
Online-ID: 2msvh5c
Referenznummer: OBGC202511171648501747ea0b9a259
Finde Angebote wie dieses
Günstige Immobilienfinanzierung einfach online berechnen
Persönliches Angebot berechnenWarum sehe ich diese Werbung? – Du siehst diese Werbung basierend auf Deiner Navigation auf unserer Website und der von Dir verwendeten Suchkriterien.
Diese Werbung wird bezahlt von durchblicker
Werbung melden
Hier geht es zu unserem Impressum, den Allgemeinen Geschäftsbedingungen, den Hinweisen zum Datenschutz und nutzungsbasierter Online-Werbung.