
Gebler Immobilien GmbH & Co. KG
Frau Yvonne Vogtland
+49 ···
Nr. anzeigenPreise & Kosten
Kaution
2.070
Warum sehe ich diese Anzeige? – Du siehst diese Anzeige basierend auf Ihrer Navigation auf unserer Website und den Suchkriterien, die du verwendet hast.
Lage
Iserlohn liegt in Südwestfalen in der südöstlichen Randzone des Ruhrgebietes, östlich von Hagen. Das Stadtgebiet ist Teil des Sauerlandes und weist große Waldflächen auf. Mit rund 94.000 Einwohner ist Iserlohn die größte Stadt des Märkischen Kreises und des Sauerlandes.
Diese außergewöhnliche Dachgeschosswohnung befindet...
Die Wohnung
Wohnungslage
3. Geschoss (Dachgeschoss)
Bezug
sofort
Wohnanlage
Energie & Heizung
Warum sehe ich diese Anzeige? – Du siehst diese Anzeige basierend auf Ihrer Navigation auf unserer Website und den Suchkriterien, die du verwendet hast.
Energieausweistyp
Verbrauchsausweis
Gebäudetyp
Wohngebäude
Baujahr laut Energieausweis
1985
Wesentliche Energieträger
Strom
Gültigkeit
25.05.2021 bis 25.05.2031
Effizienzklasse
D
Endenergieverbrauch
109,40 kWh/(m²·a)
Weitere Energiedaten
Energieträger
Elektro
Heizungsart
Fußbodenheizung
Details
Objektbeschreibung
In unmittelbarer Nähe zum evangelischen Krankenhaus Bethanien und der bevorzugten Wohnlage "Alexanderhöhe" finden in dieser charmanten 3 -Zimmer Dachgeschosswohnung Singles oder Paare ihr perfektes Zuhause. In einer Seitenstraße nahe des Waldes gelegen, haben Sie hier die Möglichkeit, ruhig und dennoch zentral zu wohnen...
Ausstattung
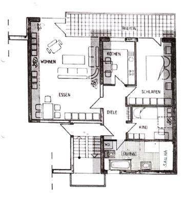
großzügig geschnittener Grundriss
großer Wohn-/ Essbereich mit angrenzendem Balkon,
Regalwand und Sideboard
ca. 17 m² großer Balkon mit Blick ins Grüne
geräumiges Schlafzimmer mit Einbauschrank und Zugang zum Balkon
Kinder- oder Arbeitszimmer
Tageslichtbad mit Badewanne, Dusche und Sauna
Diele mit...
Weitere Informationen
Sonstiges
Alle Angaben sind ohne Gewähr und basieren ausschließlich auf Informationen, die uns von unserem Auftraggeber übermittelt wurden. Wir übernehmen keine Gewähr auf die Vollständigkeit, Richtigkeit und Aktualität dieser Angaben.
Stichworte
Anzahl der Schlafzimmer: 2, Anzahl der Badezimmer: 1, Anzahl...
Anbieter der Immobilie
Gebler Immobilien GmbH & Co. KG
Grünstraße 16, 58095 Hagen
Online-ID: 2msxb5b
Referenznummer: 9302#QnzPzu
Finde Angebote wie dieses
Hier geht es zu unserem Impressum, den Allgemeinen Geschäftsbedingungen, den Hinweisen zum Datenschutz und nutzungsbasierter Online-Werbung.