

BS Immobilien Kontor Büürma GmbH
Herr Dennis Büürma
049 ···
Nr. anzeigenPreise & Kosten
Provision für Käufer
Die Maklerprovision beträgt für den Käufer 5,95% vom Kaufpreis inkl. ges. MwSt..
Lage
26532 Großheide (Ruhige Wohnlage, Nordseeküstenregion, Einkaufsmöglichkeiten in nächster Nähe, gute ÖPNV, Nähe zur Hage und Golfplatz)
Das Grundstück
Details
Objektbeschreibung
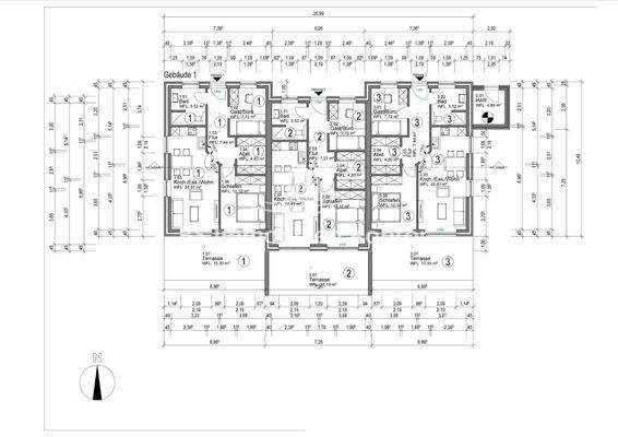
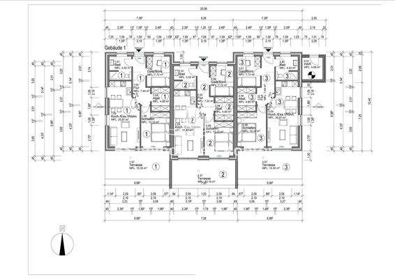
Zum Verkauf steht ein projektiertes Baugrundstück in der Gemeinde Großheide, Gemarkung Westerende, das sich besonders durch seine bereits vorliegende Baugenehmigung und die damit verbundene Möglichkeit eines kurzfristigen Baustarts auszeichnet. Geplant ist die Errichtung von insgesamt neun modernen Bungalows, verteilt auf...
Weitere Informationen
Sonstiges
Weitere Unterlagen und die Baugenehmigung erhalten Sie auf Anfrage!
Stichworte
Anzahl der Wohneinheiten: 9
Anbieter der Immobilie
BS Immobilien Kontor Büürma GmbH
Faldernstraße 29, 26725 Emden

Online-ID: 2msxs5z
Referenznummer: E19B58000
Finde Angebote wie dieses
Hier geht es zu unserem Impressum, den Allgemeinen Geschäftsbedingungen, den Hinweisen zum Datenschutz und nutzungsbasierter Online-Werbung.