
Neutor Real GmbH
Frau Melanie Ivancsics
+43 ···
Nr. anzeigenPreise & Kosten
inkl. Betriebskosten
Kaution
5.970,00 €
Provision für Mieter
Gemäß Erstauftraggeberprinzip bezahlt der Abgeber die Provision.
Warum sehe ich diese Anzeige? – Du siehst diese Anzeige basierend auf Ihrer Navigation auf unserer Website und den Suchkriterien, die du verwendet hast.
Lage
Rochusmarkt, Arenbergpark, Wien Mitte/Landstraße, Palais Rasumofsky
Die Wohnung
Wohnungslage
1. Geschoss
Bezug
nach MV
Wohnanlage
Energie & Heizung
Warum sehe ich diese Anzeige? – Du siehst diese Anzeige basierend auf Ihrer Navigation auf unserer Website und den Suchkriterien, die du verwendet hast.
Heizwärmebedarf (HWB)
127,40 kWh/(m²·a)
Gesamtenergieeffizienz (fGEE)
2,15
Weitere Energiedaten
Energieträger
Gas
Heizungsart
Etagenheizung
Details
Objektbeschreibung
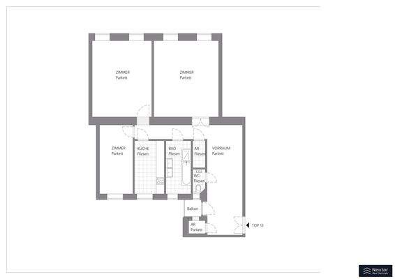
Zur Vermietung gelangt diese wunderschöne 3-Zimmer-Altbauwohnung, die den klassischen Charme eines historischen Gebäudes mit modernem Wohnkomfort verbindet. Die Wohnung besticht durch ihre helle, großzügige Raumaufteilung, sowie durch ihre ausgesprochen gute Lage im 3. Bezirk - nur wenige Gehminuten vom...
Preisinformation
Nettokaltmiete: 1.511,85 EUR
Weitere Informationen
Stichworte
Nutzfläche: 116,71 m², Gesamtfläche: 116,71 m², Anzahl der Badezimmer: 1, Anzahl der separaten WCs: 2, Anzahl Balkone: 1, Bundesland: Wien
Sonstiges/Wohnen: seniorengerechtes Wohnen
Anbieter der Immobilie
Neutor Real GmbH
Neutorgasse 13, 1010 WIEN
Online-ID: 2msxy5c
Referenznummer: OBGC2025111816413057307b0a746bb
Finde Angebote wie dieses
Hier geht es zu unserem Impressum, den Allgemeinen Geschäftsbedingungen, den Hinweisen zum Datenschutz und nutzungsbasierter Online-Werbung.