
VON POLL IMMOBILIEN Hochtaunus - Carola Öhl
Firma VON POLL IMMOBILIEN Shop Hochtaunus
+49 ···
Nr. anzeigenPreise & Kosten
Provision für Käufer
Käuferprovision beträgt 3,57 % (inkl. MwSt.) des beurkundeten Kaufpreises
Lage
Die Gemeinde Wehrheim ist die nächstgelegene Hochtaunusgemeinde nach der Saalburg, nur circa 10km von Bad Homburg und circa 25km von der Rhein-Main-Metropole Frankfurt entfernt.
Wehrheim gliedert sich in die vier Ortsteile Wehrheim, Obernhain, Pfaffenwiesbach und Friedrichsthal. Nachbarorte sind Bad Homburg, Usingen...
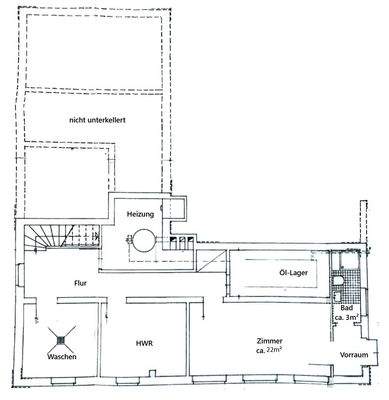
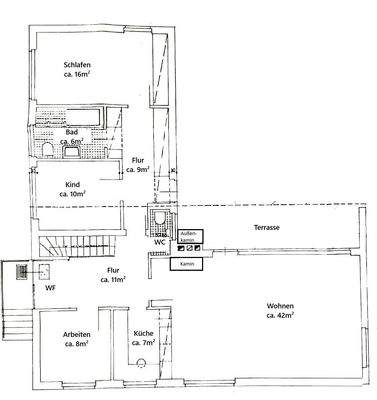
Das Haus
Kategorie
Bungalow
Baujahr
1967
Energie & Heizung
Warum sehe ich diese Anzeige? – Du siehst diese Anzeige basierend auf Ihrer Navigation auf unserer Website und den Suchkriterien, die du verwendet hast.
Energieausweistyp
Bedarfsausweis
Gebäudetyp
Wohngebäude
Baujahr laut Energieausweis
1967
Wesentliche Energieträger
OEL
Gültigkeit
bis 26.09.2035
Effizienzklasse
F
Endenergiebedarf
190,20 kWh/(m²·a)
Weitere Energiedaten
Haustyp
Massivhaus
Energieträger
Öl
Heizungsart
offener Kamin, Zentralheizung
Details
Objektbeschreibung
Sie suchen ein Haus mit schönem Garten in ruhiger Lage und separatem Einliegerbereich?
Dann möchten wir Sie auf diesen gut geschnittenen L-förmigen Bungalow aufmerksam machen! Das Haus ist gleichermaßen für eine Familie mit Kindern, als auch für ein Paar mit Platzbedarf ideal geeignet.
Die Wohnlage ist reizvoll...
Ausstattung
- Stabparkett , Fliesen- und Teppichboden
- Küche mit Elektro-Geräten
- große Fensterfront im Wohnbereich
- 2fach verglaste Fenster mit Rollläden
- Kamin mit Wärmetauscher im Wohnzimmer
- Außenkamin auf der Terrasse
- Neue Dacheindeckung mit 14 cm Aufsparrendämmung (2011)
-...
Preisinformation
2 Stellplätze
1 Garagenstellplatz
Weitere Informationen
Sonstiges
Es liegt ein Energiebedarfsausweis vor.
Dieser ist gültig bis 26.9.2035.
Endenergiebedarf beträgt 190.20 kwh/(m²*a).
Wesentlicher Energieträger der Heizung ist Öl.
Das Baujahr des Objekts lt. Energieausweis ist 1967.
Die Energieeffizienzklasse ist F.
GELDWÄSCHE: Als...
Anbieter der Immobilie
VON POLL IMMOBILIEN Hochtaunus - Carola Öhl
Kreuzgasse 22, 61250 Usingen
Online-ID: 2msyh57
Referenznummer: 25 141 056
Finde Angebote wie dieses
Hier geht es zu unserem Impressum, den Allgemeinen Geschäftsbedingungen, den Hinweisen zum Datenschutz und nutzungsbasierter Online-Werbung.