
Evernest GmbH
Lukas Sönnichsen
+49 ···
Nr. anzeigenPreise & Kosten
Provision für Käufer
3.57 inkl. MwSt.
Bei Abschluss eines notariellen Kaufvertrages ist eine Käuferprovision vom Käufer in Höhe von 3.57 % inkl. MwSt. aus dem Kaufpreis fällig.
Lage
Der Nordosten Schleswig-Holstein ist bekannt für seine vielfältige und wunderschöne Natur mit malerischen Buchten und Stränden, grünen Hügellandschaften mit leuchtenden Rapsfeldern sowie zahlreichen Naturschutzgebieten mit einer reichen Flora und Fauna. Inmitten dieser einzigartigen Naturlandschaft entsteht das Ostsee-Resort...
Die Wohnung
Kategorie
Apartment
Wohnanlage
Energie & Heizung
Warum sehe ich diese Anzeige? – Du siehst diese Anzeige basierend auf Ihrer Navigation auf unserer Website und den Suchkriterien, die du verwendet hast.
Weitere Energiedaten
Energieträger
Elektro
Details
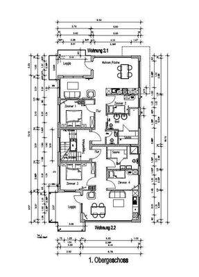
Objektbeschreibung
Dieses hochwertig und massiv errichtete Mehrfamilienhaus überzeugt durch seine herausragende Lage im beliebten OstseeResort Olpenitz. Eingebettet zwischen einem weitläufigen Naturschutzgebiet und nur wenige Schritte vom privaten Strand entfernt, vereint die Immobilie maritimes Flair mit naturnaher Ruhe - eine seltene...
Ausstattung
Wohnung 1 - EG:
- 89 m²
- 2 Schlafzimmer
- Einbauküche
- Kaminofen
- Tageslicht Duschbad mit finnischer Sauna
- Gäste-WC
- Fußbodenheizung
- Terrasse
- 1 PKW Stellplatz
Wohnung 2 - EG:
- 72 m²
- 2 Schlafzimmer
- Einbauküche
- Kaminofen
- Tageslicht Duschbad mit finnischer...
Weitere Informationen
Energiepass
Energieausweis wird bei Besichtigung vorgelegt.
Stichworte
Stellplatz vorhanden, Anzahl der Schlafzimmer: 8, Anzahl der Badezimmer: 4, Anzahl Balkone: 2, Anzahl Terrassen: 1, Balkon-Terrassen-Fläche: 14,00 m²
Anbieter der Immobilie
Online-ID: 2mszp5k
Referenznummer: L-9ORACJO
Finde Angebote wie dieses
Hier geht es zu unserem Impressum, den Allgemeinen Geschäftsbedingungen, den Hinweisen zum Datenschutz und nutzungsbasierter Online-Werbung.