

DAHLER Potsdam | Berlin-Wannsee | Kleinmachnow
Herr Christian Aschenbeck
033 ···
Nr. anzeigenPreise & Kosten
Provision für Käufer
3,57% inkl. MwSt. bezogen auf den beurkundeten Kaufpreis
Lage
Der Berliner Ortsteil Kladow wird im Norden vom Ortsteil Gatow, im Osten sowie Südosten von der Havel umgeben. Im Westen und im Südwesten grenzt das Land Brandenburg an. Dort liegen die Nachbardörfer Potsdam-Sacrow und Groß Glienicke. Mit rund 14.000 Einwohnern gehört Kladow zu den Stadtteilen Berlins, die ihren dörflichen...
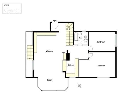
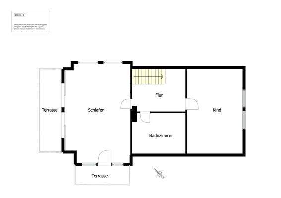
Das Haus
Kategorie
Einfamilienhaus
Baujahr
2000
Energie & Heizung
Warum sehe ich diese Anzeige? – Du siehst diese Anzeige basierend auf Ihrer Navigation auf unserer Website und den Suchkriterien, die du verwendet hast.
Energieausweistyp
Verbrauchsausweis
Gebäudetyp
Wohngebäude
Baujahr laut Energieausweis
2000
Wesentliche Energieträger
GAS
Gültigkeit
bis 27.05.2035
Effizienzklasse
D
Endenergieverbrauch
102,00 kWh/(m²·a)
Weitere Energiedaten
Energieträger
Gas
Heizungsart
offener Kamin
Details
Objektbeschreibung
Dieses Haus in Berlin-Kladow ist ein Platz zum Ankommen. Ein Familienrefugium, das Urlaubsgefühl mit Stadtkomfort verbindet - fußläufig zum historischen Ortskern mit Wocheneinkauf, Cafés, Ärzten, Apotheke und Post sowie zu Kita und Grundschule. Die Havelpromenade, der Kladower Hafen und viel Grün liegen nur einen kurzen...
Ausstattung
. Freistehendes Einfamilienhaus in ruhiger, familienfreundlicher Lage von Berlin-Kladow
. Großes, sonniges Grundstück mit ca. 739 m² und hoher Privatsphäre
. Fußerreichbar zum Kladower Ortskern mit Nahversorgung, Ärzten, Apotheke, Cafés und Wochenmarkt
. Kurze Wege zu Kita, Grundschule und Buslinien mit direkter...
Weitere Informationen
Sonstiges
Ihre Werte sind bei uns in besten Händen
DAHLER ist auf die Vermittlung hochwertiger Wohnimmobilien in bevorzugten Lagen spezialisiert. Seit über 30 Jahren wird unser Unternehmen von Kirsten und Björn Dahler geführt und setzt mit Innovationskraft und Servicequalität Maßstäbe in der Branche. Unsere mehr als...
Anbieter der Immobilie

Online-ID: 2mt335g
Referenznummer: D-WAN8749-4-LIV
Finde Angebote wie dieses
Hier geht es zu unserem Impressum, den Allgemeinen Geschäftsbedingungen, den Hinweisen zum Datenschutz und nutzungsbasierter Online-Werbung.