
Anobis Immobilien GmbH
Frau Alexandra Wagner, MSc.
+43 ···
Nr. anzeigenPreise & Kosten
Kaution
22.500,00 €
Provision für Mieter
3 Bruttomonatsmieten zzgl. 20% USt.
Warum sehe ich diese Anzeige? – Du siehst diese Anzeige basierend auf Ihrer Navigation auf unserer Website und den Suchkriterien, die du verwendet hast.
Lage
U6-Station Alterlaa, Abfahrt Südosttangente bzw A2
Büro-/Praxisfläche
Kategorie
Bürofläche
Bezug
sofort
Geschoss
3. Geschoss
Energie & Heizung
Warum sehe ich diese Anzeige? – Du siehst diese Anzeige basierend auf Ihrer Navigation auf unserer Website und den Suchkriterien, die du verwendet hast.
Heizwärmebedarf (HWB)
141,13 kWh/(m²·a)
Gesamtenergieeffizienz (fGEE)
1,09
Weitere Energiedaten
Energieträger
Fernwärme
Heizungsart
Zentralheizung
Details
Objektbeschreibung
Effizient - Zentral - modern - unbefristet: Ihr neues Büro bei der U-Bahn
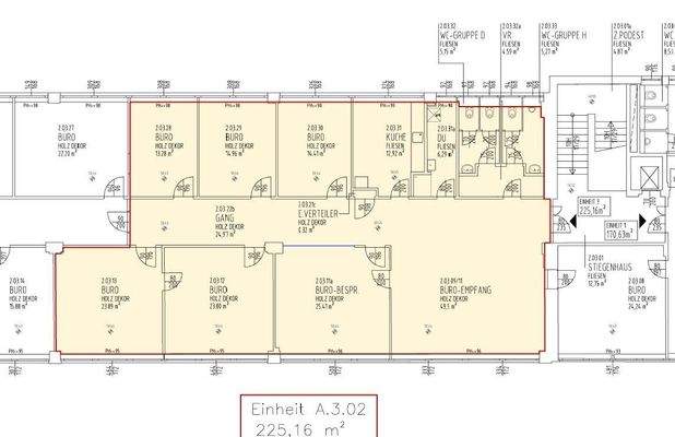
Zur Vermietung gelangt ein unbefristete Bürofläche mit 5 Büroräumen - alle zentral begehbar - im 3.Liftstock. Das modernisierte Bürohaus befindet sich zentral gelegen im Süden von Wien mit optimaler öffentlicher Anbindung - U6-Station Alterlaa...
Preisinformation
3 Stellplätze
Nettokaltmiete: 3.264,82 EUR
Weitere Informationen
Stichworte
Stellplatz vorhanden, Rolladen, Nutzfläche: 225,16 m², Anzahl der separaten WCs: 3, Bundesland: Wien, modernisiert
Sonstiges: Kabelkanäle
Anbieter der Immobilie
Anobis Immobilien GmbH
Biberstraße 3, Top 4A, 1010 WIEN
Online-ID: 2mt3a5w
Referenznummer: OBGC20251216071123886f7291b6add
Finde Angebote wie dieses
Hier geht es zu unserem Impressum, den Allgemeinen Geschäftsbedingungen, den Hinweisen zum Datenschutz und nutzungsbasierter Online-Werbung.