

Detharding Immobilien
Frau Christiane Detharding
056 ···
Nr. anzeigenPreise & Kosten
Provision für Käufer
3,0 % (inkl. MwSt.) des beurkundeten Kaufpreises
Lage
Derzeit steht das Tiny-House noch in Holland auf dem Hof von Arcabo.
Tiny-Houses können auch auf gemieteten Stellplätzen, in einem Tiny-House-Dorf oder auf einem Campingplatz platziert werden. Es ist jedoch wichtig, stets die Gesetzgebung und spezifische örtlichen Anforderungen zu beachten.
Wird das Tiny House...
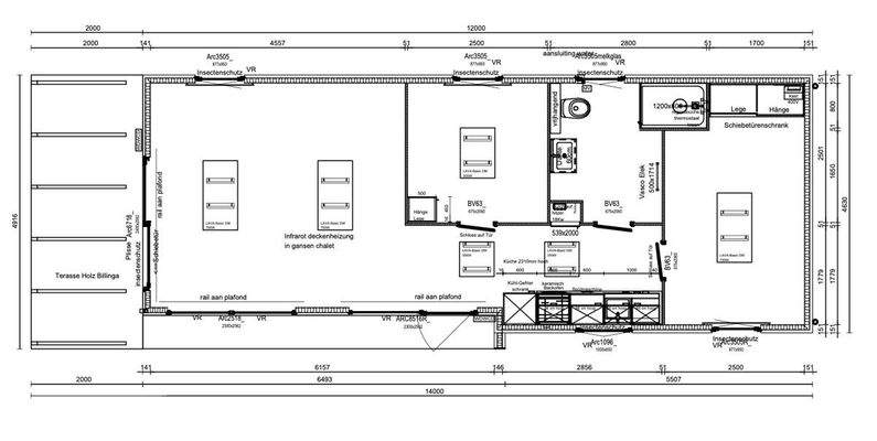
Das Haus
Kategorie
Einfamilienhaus
Baujahr
2022
Bezug
Nach Absprache
Energie & Heizung
Warum sehe ich diese Anzeige? – Du siehst diese Anzeige basierend auf Ihrer Navigation auf unserer Website und den Suchkriterien, die du verwendet hast.
Energieausweis: für diesen Gebäudetyp nicht notwendig
Weitere Energiedaten
Haustyp
Holzhaus
Details
Objektbeschreibung
Genieße das Dolomitenpanorama: Chalet Südtirol vereint Modernität und Naturverbundenheit
Ob Ferienhaus, Büro oder Yogaraum - mit dem Chalet Südtirol sind den Nutzungsmöglichkeiten kaum Grenzen gesetzt. Nur als Erstwohnsitz kann es nicht dienen, da es nicht nach GEG gedämmt ist.
Die moderne, große Terrasse ist...
Ausstattung
- Tiny-House von Vital-Camp
- für den Freizeitgebrauch
- Stahlchassis
- Holzständerwerk
- Winterfeste Isolierung (nicht nach GEG)
- Doppelverglaste Fenster mit integrierten Lüftungsschlitzen
- Vollverglaste Eingangstür
- Regenfallrohr
- Feste Anschlüsse
- Flachdach mit Ablauf
- Vollwertiges...
Weitere Informationen
Stichworte
Anzahl der Schlafzimmer: 2, Anzahl der Badezimmer: 1, Anzahl Terrassen: 1
Anbieter der Immobilie
Detharding Immobilien
An den Vogelwiesen 2 B, 34132 Kassel

Online-ID: 2mt3y5n
Referenznummer: 25.10361
Finde Angebote wie dieses
Hier geht es zu unserem Impressum, den Allgemeinen Geschäftsbedingungen, den Hinweisen zum Datenschutz und nutzungsbasierter Online-Werbung.