
SGI Immobilien
Frau Kristina Vicic
+49 ···
Nr. anzeigenPreise & Kosten
Provision für Käufer
3,57% inkl. gesetzl. Mehrwertsteuer aus dem notariell beurkundeten Kaufpreis
Handelt es sich bei der im Exposé angegebenen Immobilie um ein 1- Familienhaus oder um eine Eigentumswohnung, so gilt die Provisionsteilung nach den Bestimmungen des § 6
Lage
Das Objekt befindet sich im Ortsteil Weißenborn-Lüderode der Gemeinde Sonnenstein im thüringischen Landkreis Eichsfeld. Dieser Ortsteil liegt im Süden Thüringens und ist verkehrstechnisch gut angebunden. Die Hauptstraße, die als Landesstraße L2060 dient, verbindet den Ort mit der Bundesstraße B243 in östlicher Richtung. In...
Die Wohnung
Kategorie
Maisonette
Derzeitige Nutzung
frei
Wohnanlage
Energie & Heizung
Warum sehe ich diese Anzeige? – Du siehst diese Anzeige basierend auf Ihrer Navigation auf unserer Website und den Suchkriterien, die du verwendet hast.
Weitere Energiedaten
Energieträger
Gas
Heizungsart
Fußbodenheizung, Zentralheizung
Details
Objektbeschreibung
Objektbeschreibung
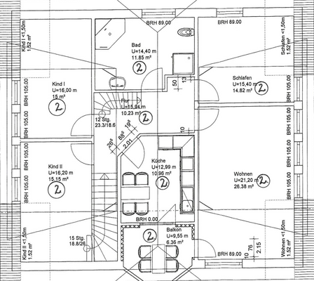
Die charmant geschnittene 4-Zimmer-Maisonette-Wohnung befindet sich im Dachgeschoss eines Zweifamilienhauses. Das Gebäude wurde ca. 2002 in Massivbauweise errichtet.
Die ca. 107 m² große Wohnung besteht im Dachgeschoss aus Flur, Tageslicht Bad mit Dusche und Wanne, Küche, Wohn- und Essbereich mit...
Ausstattung
- Massivbauweise
- Walmdach mit Gauben
- Ausgebauter Spitzboden
- doppelverglaste Holzfenster, braun (DG)
- doppelverglaste Holzfenster, braun (Spitzboden)
- Rollladen
- Tageslicht Bad mit Dusche und Wanne
- Fußbodenheizung
- Bodenbeläge: Laminat, Fliesen
- Gas-Zentralheizung
- Balkon
-...
Weitere Informationen
Sonstiges
Aktuelle Nutzung:
Die Wohnung steht derzeit leer.
Besichtigung
Jederzeit nach vorheriger Terminvereinbarung durch unser Büro möglich.
Sämtliche Angaben im Exposé und bauliche Pläne sind uns vom Verkäufer zur Verfügung gestellt worden. Für die Richtigkeit der im Exposé veröffentlichten Angaben...
Anbieter der Immobilie
SGI Immobilien
Lyoner Straße 20, 60528 Frankfurt am Main
Online-ID: 2mt4254
Referenznummer: SG24424
Finde Angebote wie dieses
Weitere Immobilien
Hier geht es zu unserem Impressum, den Allgemeinen Geschäftsbedingungen, den Hinweisen zum Datenschutz und nutzungsbasierter Online-Werbung.