
Riverside Real Estate GmbH
Frau Lynn Ülzmann
004 ···
Nr. anzeigenPreise & Kosten
Provision für Käufer
5,95 % inkl. 19 % MwSt
Lage
Das Wohn- und Geschäftshaus befindet sich in gut sichtbarer Lage direkt an der Woltmershauser Straße, einer Hauptstraße, welche sich durch Woltmershausen zieht. Die ausgezeichnete Erreichbarkeit machen diesen Standort besonders attraktiv für die gewerbliche Nutzung - ideal für Dienstleister oder...
Das Haus
Baujahr
1951
Energie & Heizung
Warum sehe ich diese Anzeige? – Du siehst diese Anzeige basierend auf Ihrer Navigation auf unserer Website und den Suchkriterien, die du verwendet hast.
Energieausweistyp
Bedarfsausweis
Gebäudetyp
Wohngebäude
Baujahr laut Energieausweis
1951
Wesentliche Energieträger
GAS
Gültigkeit
bis 26.11.2035
Effizienzklasse
H
Endenergiebedarf
249,50 kWh/(m²·a)
Weitere Energiedaten
Energieträger
Gas
Heizungsart
Etagenheizung
Details
Objektbeschreibung
Dieses charmante Wohn- und Geschäftshaus aus dem Jahr 1951 vereint drei eigenständige Einheiten auf einer Gesamtfläche von rund 123 m² und bietet damit ideale Voraussetzungen für Kapitalanleger.
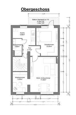
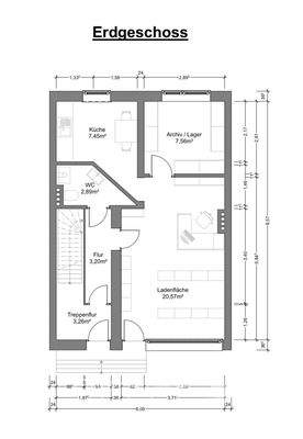
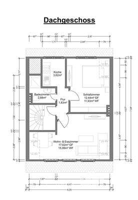
Auf einem etwa 201 m² großen Grundstück befinden sich im Erdgeschoss eine Gewerbefläche sowie zwei Wohneinheiten im ersten...
Ausstattung
Wohn-und Geschäftshaus mit einer Gewerbeeinheit und zwei Wohneinheiten:
- Baujahr 1951
- Grundstückgröße: ca. 201 m²
- Wohn- und Gewerbefläche Gesamt: ca. 122,89 m²
- Balkon
- Hinterhof mit 2 Lagerräumen
- 3 Etagenheizungen (Baujahr 2004, 2003 + 1986)
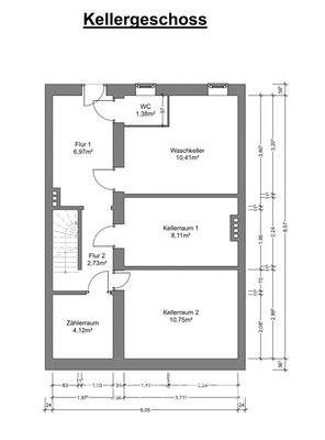
- Keller
- Fenster Wohnung im DG aus 2004...
Weitere Informationen
Sonstiges
Die Riverside Real Estate GmbH bietet Immobilien aller Assetklassen zum Verkauf an, mit Standorten in Hameln-Pyrmont, Hannover, Bremen und Umgebung.
Wenn Sie mehr über uns erfahren möchten, besuchen Sie gerne unsere Homepage unter WWW.RIVERSIDE-ESTATE.DE. Dort finden Sie ausführliche Informationen über...
Anbieter der Immobilie
Riverside Real Estate GmbH
Erichstr. 16, 31785 Hameln
Online-ID: 2mt4d5h
Referenznummer: 2025-433
Finde Angebote wie dieses
Hier geht es zu unserem Impressum, den Allgemeinen Geschäftsbedingungen, den Hinweisen zum Datenschutz und nutzungsbasierter Online-Werbung.