
Kettenbach Immobilien GmbH
Frau Irene Kettenbach
004 ···
Nr. anzeigenPreise & Kosten
Provision für Käufer
2,99 inkl. MwSt.
Lage
Die Immobilie befindet sich in Remscheid-Nord, einem ruhigen und grünen Wohngebiet. Die beliebten Stadtteile Lüttringhausen und Hasten liegen nur ca. 2-4 km entfernt und sind für ihre historischen, gut erhaltenen Ortskerne bekannt.
Die Umgebung ist typischerweise von Einfamilienhäusern und kleineren Mehrfamilienhäusern...
Das Haus
Kategorie
Mehrfamilienhaus
Bezug
01.08.2026
Energie & Heizung
Warum sehe ich diese Anzeige? – Du siehst diese Anzeige basierend auf Ihrer Navigation auf unserer Website und den Suchkriterien, die du verwendet hast.
Weitere Energiedaten
Energieträger
Gas
Heizungsart
offener Kamin, Zentralheizung
Details
Objektbeschreibung
Dieses gepflegte Ein- bis Zweifamilienhaus in ruhiger Wohnlage von Remscheid-Nord. Es wurde im Jahr 1972 erbaut und bietet mit einer Wohnfläche von ca. 211 m² vielfältige Nutzungsmöglichkeiten. Die Immobilie eignet sich sowohl für Familien mit Platzbedarf als auch für Mehrgenerationenwohnen oder eine Kombination aus Wohnen...
Ausstattung
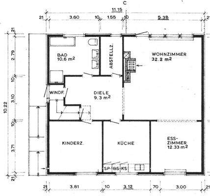
- EG 126,19 qm Wohnfläche - 2 Zimmer, Küche, Diele, Bad, Wirtschaftsraum
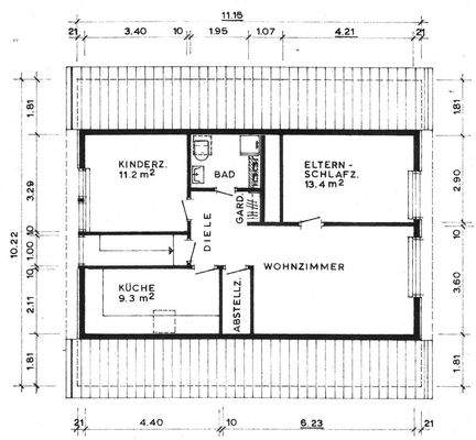
- 1. OG 63,55 qm - 3 Zimmer, Küche, Diele, Bad
- UG 56,15 qm - 2 Kellerräume, Sauna, Flur, Arbeitszimmer mit separatem Eingang
- Gas-Zentralheizung
- Wasserwärmetauscher von 2012
- Außentreppe mit Edelstahlgeländer von 2024
-...
Preisinformation
3 Stellplätze
1 Garagenstellplatz
Weitere Informationen
Stichworte
Nutzfläche: 20,00 m², Anzahl der Schlafzimmer: 3, Anzahl der Badezimmer: 3, Anzahl Terrassen: 1
Sonstiges/Wohnen: Einliegerwohnung
Anbieter der Immobilie
Kettenbach Immobilien GmbH
Löhdorfer Straße 281, 42699 Solingen
Online-ID: 2mt525r
Referenznummer: 2911
Finde Angebote wie dieses
Hier geht es zu unserem Impressum, den Allgemeinen Geschäftsbedingungen, den Hinweisen zum Datenschutz und nutzungsbasierter Online-Werbung.