

PIPPING Immobilien GmbH & Co. KG
Herr Philipp Schönemann
+49 ···
Nr. anzeigenPreise & Kosten
Provision für Käufer
6,25 % inkl. USt.
Lage
Reinbek - die "Stadt im Grünen", liegt im Speckgürtel von Hamburg und bietet derzeit ca. 28.000 Einwohnern eine attraktive Infrastruktur mit Ärzten, Apotheken, Restaurants, Supermärkten sowie Dienstleistungsbetrieben aus allen Branchen. Kindergärten, Grundschulen und weiterführende Schulen sind ebenso vorhanden wie ein...
Das Renditeobjekt
Baujahr
1965
Energie & Heizung
Warum sehe ich diese Anzeige? – Du siehst diese Anzeige basierend auf Ihrer Navigation auf unserer Website und den Suchkriterien, die du verwendet hast.
Wärme
Strom
Energieausweistyp
Verbrauchsausweis
Gebäudetyp
Nicht-Wohngebäude
Baujahr laut Energieausweis
2016
Wesentliche Energieträger
Gas
Endenergieverbrauch (Wärme)
172,00 kWh/(m²·a)
Endenergieverbrauch (Strom)
58,00 kWh/(m²·a)
Weitere Energiedaten
Energieträger
Gas
Details
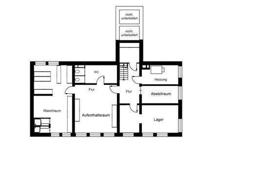
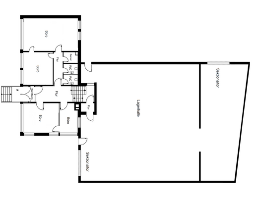
Objektbeschreibung
Dieser großzügige Gewerbekomplex vereint Bürofläche, eine weitläufige Werkhalle und eine komfortable Wohnung - ideal für Unternehmer, Investoren oder kreative Köpfe mit großem Platzbedarf.
Der gepflegte Gebäudekomplex wurde im Jahre 1965 errichtet. Die Halle wurde erweitert.
Im Erdgeschoss/ Hochparterre...
Anbieter der Immobilie

Online-ID: 2mt6l59
Referenznummer: PS-251812534
Finde Angebote wie dieses
Hier geht es zu unserem Impressum, den Allgemeinen Geschäftsbedingungen, den Hinweisen zum Datenschutz und nutzungsbasierter Online-Werbung.