
Immo Mayer s.r.l.s
003 ···
Nr. anzeigenPreise & Kosten
Provision für Käufer
3% vom Kaufpreis zzgl. MwSt.
Die Wohnung
Wohnungslage
1. Geschoss
Wohnanlage
Energie & Heizung
Warum sehe ich diese Anzeige? – Du siehst diese Anzeige basierend auf Ihrer Navigation auf unserer Website und den Suchkriterien, die du verwendet hast.
Weitere Energiedaten
Energieträger
Gas
Heizungsart
Fußbodenheizung
Details
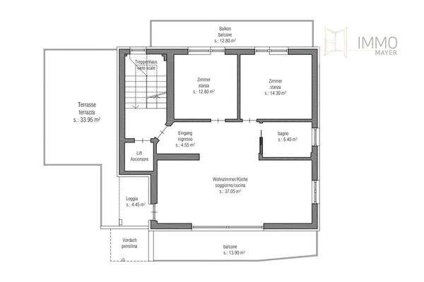
Objektbeschreibung
In einem eleganten Neubau mit nur vier Einheiten erwartet Sie diese helle 3-Zimmerwohnung im ersten Stock. Die Fertigstellung erfolgte 2024, das gesamte Haus überzeugt durch moderne Architektur, hochwertige Materialien und ein angenehmes Wohngefühl. Ein besonderes Highlight ist die großzügige Terrasse - perfekt, um gemütlich...
Preisinformation
1 Stellplatz, Kaufpreis: 22.000,00 EUR
Weitere Informationen
Stichworte
Gesamtfläche: 135,00 m², Anzahl der Schlafzimmer: 2, Anzahl der Badezimmer: 1, Balkon-Terrassen-Fläche: 65,00 m², Kellerfläche: 2,00 m², Anzahl der Wohneinheiten: 4
Dokumente
Anbieter der Immobilie
Online-ID: 2mt7g5f
Referenznummer: RM768
Finde Angebote wie dieses
Hier geht es zu unserem Impressum, den Allgemeinen Geschäftsbedingungen, den Hinweisen zum Datenschutz und nutzungsbasierter Online-Werbung.