
McMakler GmbH
Ihr McMakler Team
080 ···
Nr. anzeigenPreise & Kosten
Provision für Käufer
Die Provision i.H.v. 3,57 % inkl. MwSt. ist mit Kaufvertragsbeurkundung fällig, sofern der Verkaufspreis über 83.000,00 € liegt.
Liegt der Verkaufspreis dagegen bei/unter 83. Weitere Informationen siehe Provisionshinweis.
Lage
Lage: Attraktive Lage in Pforzheim-Eutingen mit besten Bedingungen für Selbstnutzer oder Kapitalanleger
Bildung und Betreuung: Zu Fuß zu Kindergarten und Schule in max. 800 m Entfernung
Nahversorgung: In unmittelbarer Nähe (ca. 800 m) Supermarkt, Apotheke und Bankfiliale verfügbar
Anbindung: Bushaltestelle, Bahnhof...
Das Renditeobjekt
Baujahr
2014
Bezug
nach Absprache
Energie & Heizung
Warum sehe ich diese Anzeige? – Du siehst diese Anzeige basierend auf Ihrer Navigation auf unserer Website und den Suchkriterien, die du verwendet hast.
Energieausweistyp
Bedarfsausweis
Gebäudetyp
Wohngebäude
Baujahr laut Energieausweis
2014
Wesentliche Energieträger
Gas
Effizienzklasse
D
Endenergiebedarf
108,60 kWh/(m²·a)
Weitere Energiedaten
Energieträger
Gas
Heizungsart
Zentralheizung
Details
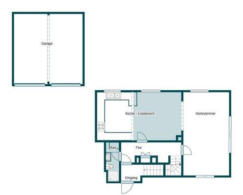
Objektbeschreibung
Objektnr: 1069750
In Pforzheim-Eutingen, präsentiert sich diese Immobilie als ideale Wahl für Eigennutzer und Familien die gerne in einem Mehrgenerationenhaus leben möchten.
Ihren einladenden Zustand verdankt die 2014 erbaute Immobilie einem stets pfleglichen Umgang.
Das Grundstück hat eine Gesamtgröße von...
Ausstattung
+ In familienfreundlicher Umgebung von Pforzheim-Eutingen
+ Einfamilienhaus mit Einliegerwohnung (BJ 2014), Garten, zwei Terrassen
+ Die Immobilie präsentiert sich in einem gepflegten Zustand
+ Fußbodenheizung, Einbauküche im EG+UG, elektr. Jalousien, Sauna im UG
+ Doppelgarage
Weitere Informationen
Provisionshinweis
Die Provision i.H.v. 3,57 % inkl. MwSt. ist mit Kaufvertragsbeurkundung fällig, sofern der Verkaufspreis über 83.000,00 € liegt.
Liegt der Verkaufspreis dagegen bei/unter 83.000,00 €, ist die fest vereinbarte Mindestprovision i.H.v. mind. 5.950,00 € inkl. MwSt. mit Kaufvertragsbeurkundung fällig...
Anbieter der Immobilie
McMakler GmbH
Am Postbahnhof 17, 10243 Berlin
Online-ID: 2mt855t
Referenznummer: 5ceddacd9d
Finde Angebote wie dieses
Hier geht es zu unserem Impressum, den Allgemeinen Geschäftsbedingungen, den Hinweisen zum Datenschutz und nutzungsbasierter Online-Werbung.