
Wille+Christen Immobilien Management GmbH
Frau Susann Lopens
Kontaktiere den Anbieter schriftlich, es ist keine Telefonnummer hinterlegt.
Preise & Kosten
Kaution
3 Nettokaltmieten
Warum sehe ich diese Anzeige? – Du siehst diese Anzeige basierend auf Ihrer Navigation auf unserer Website und den Suchkriterien, die du verwendet hast.
Lage
Die Wohnung liegt in sehr angenehmer und zentraler Lage in Parchim, direkt „Am Exerzierplatz“.
Parchim ist eine traditionsreiche Kleinstadt in Mecklenburg-Vorpommern mit viel Charme und einer malerischen Altstadt, die geprägt ist von Backsteingotik und historischen Fachwerkhäusern.
Die Lage bietet eine gute Anbindung...
Die Wohnung
Wohnungslage
Erdgeschoss
Bezug
sofort
Wohnanlage
Energie & Heizung
Warum sehe ich diese Anzeige? – Du siehst diese Anzeige basierend auf Ihrer Navigation auf unserer Website und den Suchkriterien, die du verwendet hast.
Weitere Energiedaten
Energieträger
Fernwärme
Heizungsart
Zentralheizung
Details
Objektbeschreibung
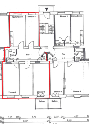
Diese großzügige 3-Zimmer-Wohnung mit ca. 107 m² befindet sich im Erdgeschoss eines gepflegten Wohnhauses und überzeugt durch ihre moderne und frisch renovierte Ausstattung.
Der durchdachte Grundriss bietet helle, einladende Räume und ein angenehmes Wohngefühl.
Das Herzstück der Wohnung bildet der großzügige...
Weitere Informationen
Sonstiges
Vereinbaren Sie gerne einen Termin zur Besichtigung mit uns.
Heizungsart:
Heizkörper
Anbieter der Immobilie
Wille+Christen Immobilien Management GmbH
August-Bebel-Str. 3, 19055 Schwerin
Frau Susann Lopens
Dein Ansprechpartner
Kontaktiere den Anbieter schriftlich, es ist keine Telefonnummer hinterlegt.
Online-ID: 2mt8g5w
Referenznummer: PH04 EG-R
Finde Angebote wie dieses
Hier geht es zu unserem Impressum, den Allgemeinen Geschäftsbedingungen, den Hinweisen zum Datenschutz und nutzungsbasierter Online-Werbung.