

KILIAN IMMOBILIEN
Herr Dipl. Betriebswirt (FH) Thomas Kilian
091 ···
Nr. anzeigenPreise & Kosten
Provision für Käufer
Käuferprovision in Höhe von 3,57 % inklusive der gesetzlichen Mehrwertsteuer aus dem notariellen Gesamtkaufpreis, verdient und fällig am Tage der Beurkundung.
Lage
Dieses außergewöhnliche Wohnhaus mit drei Wohnungen und einem Anbau für Büro bzw. Einliegerwohnung im beliebten Büchenbach wird Sie begeistern!
Das sanierte Haus mit 400 m² Wfl. befindet sich auf dem perfekten Grundstück mit 1.452 m².
Nordseitig ein großer Hof mit Natursteinplatten für zahlreiche Kfz-Parkplätze...
Das Haus
Kategorie
Mehrfamilienhaus
Baujahr
1965
Bezug
sofort
Derzeitige Nutzung
frei
Energie & Heizung
Warum sehe ich diese Anzeige? – Du siehst diese Anzeige basierend auf Ihrer Navigation auf unserer Website und den Suchkriterien, die du verwendet hast.
Weitere Energiedaten
Energieträger
Öl
Heizungsart
offener Kamin, Zentralheizung
Details
Objektbeschreibung
Hier erwartet Sie auf einem traumhaften Grundstück mit einem voll unterkellerten, saniertem Dreiparteienhaus und dem zusätzlichen Hausanbau eine exklusive und außergewöhnliche Immobilie!
HIER HABEN SIE EINE EINMALIGE GELEGENHEIT AUF EIN E EXKLUSIVES MEHR-PARTEIEN-HAUS!
ALLGEMEINES
- Amtsgericht...
Ausstattung
HIER IN DIESEM OBJEKTEXPOSÉ FINDEN NUR EINE AUSWAHL AN BILDERN! GERNE KÖNNEN SIE EIN EXPOSÉ MIT ZAHLREICHEN INNEN- UND AUSSENBILDERN ANFORDERN!
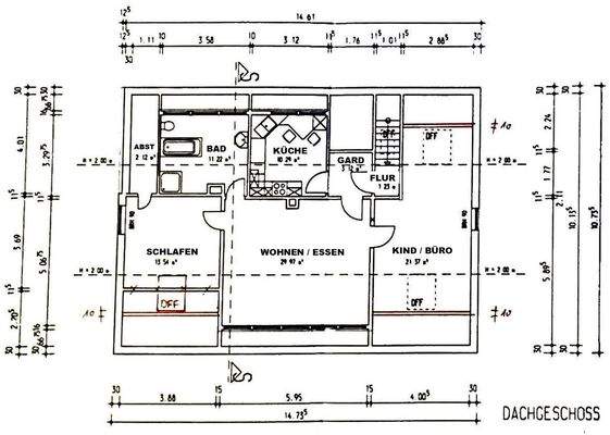
ERDGESCHOSS
- 3 Zimmer Wohnung mit Zugang zum Anbau
- halboffener großer Bereich mit Kochen, Essen, Wohnen und Kaminzimmer mit ca. 57 m²
- exklusive, weiße...
Weitere Informationen
Hier haben Sie die seltene Gelegenheit ein saniertes und vollunterkellertes Haus mit drei abgeschlossenen Wohnungen und einem Büroanbau bzw. Anliegerwohnung auf einem beispiellosen Grundstück mit 1..452 m² in Büchenbach zu erwerben.
Dieses außergewöhnliche Haus aus Erstbesitz mit drei Wohn-Etagen ist perfekt für eine...
Anbieter der Immobilie

Online-ID: 2mtb75q
Referenznummer: 03 Kilian 3PH Büchenbach_400 qm
Finde Angebote wie dieses
Hier geht es zu unserem Impressum, den Allgemeinen Geschäftsbedingungen, den Hinweisen zum Datenschutz und nutzungsbasierter Online-Werbung.