
RE/MAX 1A Immobilien GmbH
Herr Mehmet Coskun
004 ···
Nr. anzeigenPreise & Kosten
Provision für Käufer
zuzüglich 3,57% Maklerprovision inkl. 19% MwSt. inkl. MwSt.
Lage
Die Villa befindet sich in der exklusiven Region Yalikavak in Bodrum, einer der begehrtesten Wohngegenden der Türkei. Yalikavak ist bekannt für seine malerischen Landschaften, das kristallklare Wasser der Ägäis und seine luxuriösen Annehmlichkeiten.
Die Lage bietet eine perfekte Balance zwischen Ruhe und Privatsphäre...
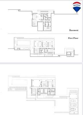
Das Haus
Kategorie
Villa
Details
Objektbeschreibung
Diese atemberaubende Villa in Bodrum, Yalikavak, wurde von dem weltbekannten Architekten Richard Meier entworfen und verkörpert modernen Luxus und zeitlose Eleganz. Die Villa erstreckt sich auf einem weitläufigen Grundstück von 5.104 m² und bietet eine beeindruckende Innenraumfläche von insgesamt 1.345 m². Das Haupthaus...
Ausstattung
- Haupthaus: 574 m², mit großzügigen Wohn- und Essbereichen, zwei voll ausgestatteten Küchen und fünf luxuriösen Badezimmern
- Gästehaus: 55 m², ideal für Besucher oder Personal
- Fitnessstudio: 60 m², ausgestattet mit modernsten Fitnessgeräten
- Zwei Küchen: Modern und vollständig ausgestattet, perfekt für...
Preisinformation
6.000.000,00
Weitere Informationen
Sonstiges
RE/MAX Hamburg
Ihre Zufriedenheit liegt uns am Herzen.
Wenn Sie innerhalb von 24 Stunden auf Ihre Anfrage keine Rückantwort erhalten haben, rufen Sie bitte unsere Hotline unter der Nummer: +49 171 9401099 an oder schreiben Sie uns eine E-Mail an: suehan.coemertpay@remax.de
Bitte haben Sie...
Anbieter der Immobilie
Online-ID: 2mtbe5w
Referenznummer: 1107-150
Finde Angebote wie dieses
Hier geht es zu unserem Impressum, den Allgemeinen Geschäftsbedingungen, den Hinweisen zum Datenschutz und nutzungsbasierter Online-Werbung.