
Marko Künne Immobilien
034 ···
Nr. anzeigenPreise & Kosten
Provision für Käufer
provisionsfrei
Lage
Die Kleiststraße in Leipzig verbindet mehrere Ortsteile, darunter Gohlis-Mitte, Gohlis-Nord, und Eutritzsch. Die Straße liegt in einer attraktiven, überwiegend grünen Umgebung, geprägt von gepflegten Mehrfamilienhäusern, historischen Altbauten und neueren Wohnanlagen.
Es besteht eine hervorragende Anbindung an die...
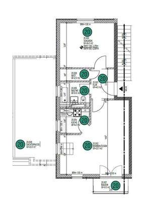
Die Wohnung
Derzeitige Nutzung
vermietet
Wohnanlage
Energie & Heizung
Warum sehe ich diese Anzeige? – Du siehst diese Anzeige basierend auf Ihrer Navigation auf unserer Website und den Suchkriterien, die du verwendet hast.
Energieausweistyp
Verbrauchsausweis
Gebäudetyp
Wohngebäude
Wesentliche Energieträger
Gas
Gültigkeit
09.08.2019 bis 08.08.2029
Effizienzklasse
E
Endenergieverbrauch
140,00 kWh/(m²·a)
Weitere Energiedaten
Energieträger
Gas
Details
Objektbeschreibung
Das angebotene Wohnungspaket umfasst vier vermietete Wohneinheiten in einem gepflegten Wohn- und Geschäftshaus. Das um 1995 erbaute Gebäude liegt in einer ruhigen und schönen Seitenstraße und wurde über die Jahre immer stets gepflegt. Das Treppenhaus ist durch die freistehende Bauweise des Objekts hell, sauber und wirkt...
Preisinformation
5 Stellplätze
Nettorendite Ist in %: 2,82
Nettorendite Soll in %: 2,82
Soll-Mieteinnahmen pro Jahr: 25.325,40 EUR
Ist-Mieteinnahmen pro Jahr: 25.325,40 EUR
Weitere Informationen
Sonstiges
Alle Angaben sind ohne Gewähr und basieren ausschließlich auf Informationen, die uns von unserem Auftraggeber zur Verfügung gestellt wurden. Wir übernehmen keine Gewähr für die Vollständig, Richtigkeit und Aktualität dieser Angaben
Stichworte
Anzahl Balkone: 1, Anzahl der Wohneinheiten: 4, Anzahl der...
Anbieter der Immobilie
Online-ID: 2mtbh55
Referenznummer: Kleiststr. 4 WE 02+05+20+21+24
Finde Angebote wie dieses
Hier geht es zu unserem Impressum, den Allgemeinen Geschäftsbedingungen, den Hinweisen zum Datenschutz und nutzungsbasierter Online-Werbung.