
Maklerbüro Andreas Übler GmbH
Herr Niko Stark
004 ···
Nr. anzeigenPreise & Kosten
Provision für Käufer
3,00 % vom Kaufpreis inkl. ges. MwSt.
Provisionsfrei
Lage
LAGE:
31719 Wiedensahl
GRÖSSE:
ca. 124 m²
GRUNDSTÜCK:
615 m²
BEBAUBARKEIT:
nach Bebauungsplan:
max. 2 Vollgeschosse
offene Bauweise
geneigtes Dach
ERSCHLIESSUNGSGRAD:
vollerschlossen
NACHBARSCHAFT:
Wohnhäuser
BESCHAFFENHEIT:
eben
OPTIMAL:
- für einen Neubau
IDEAL:
-...
Das Haus
Kategorie
Einfamilienhaus
Baujahr
2025
Energie & Heizung
Warum sehe ich diese Anzeige? – Du siehst diese Anzeige basierend auf Ihrer Navigation auf unserer Website und den Suchkriterien, die du verwendet hast.
Energieausweistyp
Bedarfsausweis
Gebäudetyp
Wohngebäude
Effizienzklasse
A
Weitere Energiedaten
Haustyp
Fertighaus
Heizungsart
Fußbodenheizung
Details
Objektbeschreibung
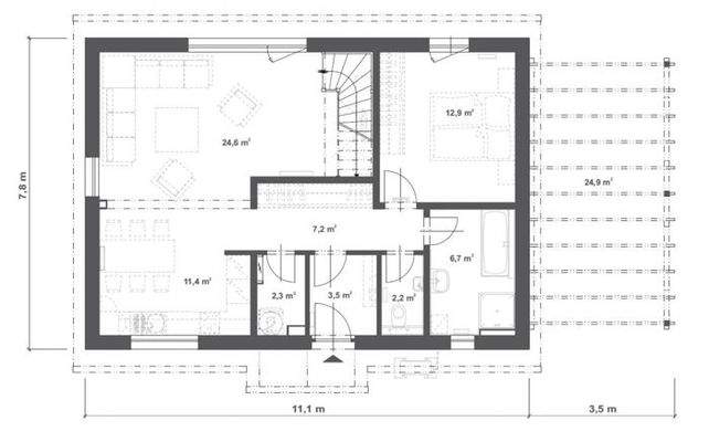
LARGO 85/ 40°SP
Das Einfamilienhaus LARGO stellt einen idealen Kompromiss zwischen Bungalow und zweistöckigem Haus dar. Seine Vorteile liegen vor allem in der schlichten rechteckigen Form und dem traditionellen Satteldach, wodurch es sich perfekt in neue und ältere Gebäude einfügt. Das Haus LARGO 85 bietet komfortables...
Ausstattung
Das Haus kann auf Wunsch mit Keller gebaut werden. Ein zusätzliches Kellerangebot kann von uns eingeholt werden.
Hauspreis ab Oberkante, Keller, Bodenplatte.
HAUS LARGO 85/40°SP
117 m²
4 Zimmer
Wohn-/ Esszimmer
Bauzeit ca. 18 Werktage
Einzugsfertig inklusive
Komplettservice inklusive
Philips...
Preisinformation
1 Stellplatz
Weitere Informationen
Sonstiges
Natürlich bauen mit Holz
Fertighäuser bestehen zu mehr als 60% aus diesem nachwachsenden Rohstoff. Ausgewählte Hölzer - fachmännisch verarbeitet garantieren eine lange Lebensdauer und eine gesunde und behagliche Wohnatmosphäre, das heißt gesundes Wohnen durch umweltbewusste Bauweise.
Kurze...
Anbieter der Immobilie
Online-ID: 2mtes56
Referenznummer: LA85 31719
Finde Angebote wie dieses
Hier geht es zu unserem Impressum, den Allgemeinen Geschäftsbedingungen, den Hinweisen zum Datenschutz und nutzungsbasierter Online-Werbung.