

Daniel von Baum Immobilien GmbH
Herr Artin Martinian
020 ···
Nr. anzeigenPreise & Kosten
Provision für Käufer
3,57% (inkl. ges. MwSt.)
3,57% (inkl. ges. MwSt.) des Kaufpreises, fällig und zahlbar mit Abschluss des notariellen Kaufvertrages.
Das Haus
Kategorie
Einfamilienhaus
Baujahr
1897
Bezug
sofort
Energie & Heizung
Warum sehe ich diese Anzeige? – Du siehst diese Anzeige basierend auf Ihrer Navigation auf unserer Website und den Suchkriterien, die du verwendet hast.
Energieausweis: für diesen Gebäudetyp nicht notwendig
Details
Objektbeschreibung
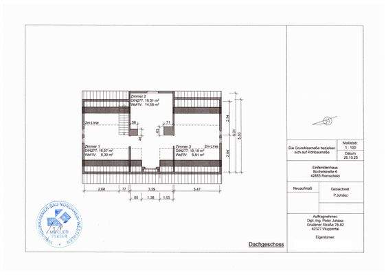
Dieses charmante Ein- bis Zweifamilienhaus bietet eine großartige Gelegenheit für Eigennutzer oder Investoren, die ein Projekt mit Potenzial suchen. Mit einer Wohnfläche von knapp 163 m² auf einem Grundstück von 285 m², davon 100 m² Gartenfläche, präsentiert sich dieses Haus entkernt, weitestgehend zur Sanierung vorbereitet...
Weitere Informationen
Stichworte
Stellplatz vorhanden, Anzahl der Schlafzimmer: 4, Gartenfläche: 100,00 m², Bundesland: Nordrhein-Westfalen, Distanz zum Flughafen: 51.6, Distanz zum Hauptbahnhof: 3.59, Distanz zum Bus: 0.03
Anbieter der Immobilie
Daniel von Baum Immobilien GmbH
Am Buschhäuschen 7, 42115 Wuppertal

Online-ID: 2mtg45z
Referenznummer: BS6 2026 - SHS
Finde Angebote wie dieses
Hier geht es zu unserem Impressum, den Allgemeinen Geschäftsbedingungen, den Hinweisen zum Datenschutz und nutzungsbasierter Online-Werbung.