
ohne-makler.net - Immobilien selbst vermarkten
Angebot von DAN-WOOD Fertighaus Tatjana Wyss
+43 ···
Nr. anzeigenPreise & Kosten
Provision für Käufer
provisionsfrei
Lage
Auf Ihrem Grundstück oder in...
Güssing: Ca. 2.600m² Lage vollkommen eben, . Grundstücksgrößen und Grundstückslagen frei wählbar. Größen von 500m² - 1500m²
Hier sind die Baugründe der Extraklasse! In bester Lage und mit einem atemberaubenden Blick auf die wunderschöne Burg Güssing!
Güssing bietet ein zukunftssicheres...
Das Haus
Kategorie
Einfamilienhaus
Baujahr
2026
Bezug
nach Absprache
Energie & Heizung
Warum sehe ich diese Anzeige? – Du siehst diese Anzeige basierend auf Ihrer Navigation auf unserer Website und den Suchkriterien, die du verwendet hast.
Weitere Energiedaten
Heizungsart
Fußbodenheizung, Luft-/Wasser-Wärmepumpe
Details
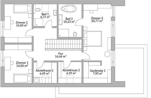
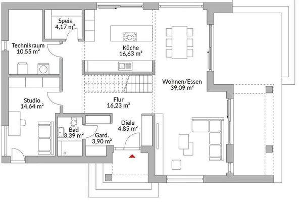
Objektbeschreibung
POINT 217 S EIN ARCHITEKTONISCHES STATEMENT
Wie ein Bühnenbild empfängt Sie dieses Haus mit erhöhter Eingangspartie und einer Tür, die Raum für Erwartungen schafft. Die Giebelfenster - ein Blickfang, ein Versprechen.
Fenster, die den Boden berühren, lassen Licht fließen und Räume atmen. Die Küche - offen, einladend -...
Ausstattung
Gäste-WC, Parkett, Laminat, Fliesen, Sonstiges (s. Text)
Bemerkungen:
?VISION Schlüsselfertig Bau- und Leistungsbeschreibung - Häuser auf Bodenplatte!
Leistungsumfang
RAUMHÖHEN: EG 3,05m DG 2,67m
Technik
Technik, die das Wohnen leichter macht Das Technikpaket Today 3BL kombiniert moderne...
Weitere Informationen
Sonstiges
Heizungsart: Fußbodenheizung
Energieträger: Luft-/Wasserwärme
Energieausweis nicht vorhanden
Hinweis: Alle Hauspreise gelten ab Oberkante Bodenplatte. Abbildungen können optionale Sonderausstattungen zeigen.
Makleranfragen nicht erwünscht.
ohne-makler (OM) ist weder Anbieter noch...
Dokumente
Anbieter der Immobilie
Online-ID: 2mth55z
Referenznummer: 395314
Finde Angebote wie dieses
Günstige Immobilienfinanzierung einfach online berechnen
Persönliches Angebot berechnenWarum sehe ich diese Werbung? – Du siehst diese Werbung basierend auf Deiner Navigation auf unserer Website und der von Dir verwendeten Suchkriterien.
Diese Werbung wird bezahlt von durchblicker
Werbung melden
Hier geht es zu unserem Impressum, den Allgemeinen Geschäftsbedingungen, den Hinweisen zum Datenschutz und nutzungsbasierter Online-Werbung.