

LBS Immobilien GmbH
Frau Andrea Reinert-Clemens
068 ···
Nr. anzeigenPreise & Kosten
Provision für Käufer
3,57 % inkl. MwSt.
Wir haben einen provisionspflichtigen Maklervertrag in gleicher Höhe mit dem Verkäufer geschlossen (§ 656 c BGB).
Lage
Eimersdorf ist ein Ortsteil der Großgemeinde Rehlingen-Siersburg im Landkreis Merzig-Wadern. Über die Grenzen der Gemeinde hinaus bekannt ist Eimersdorf aufgrund seines reichhaltigen Orchideenvorkommens in seinem großen Naturschutzgebiet.
Eimersdorf verfügt über eine gute Verkehrsanbindung. Über die Landstraße L357...
Das Haus
Kategorie
Mehrfamilienhaus
Baujahr
1930
Bezug
sofort
Energie & Heizung
Warum sehe ich diese Anzeige? – Du siehst diese Anzeige basierend auf Ihrer Navigation auf unserer Website und den Suchkriterien, die du verwendet hast.
Energieausweistyp
Bedarfsausweis
Gebäudetyp
Wohngebäude
Baujahr laut Energieausweis
1930
Wesentliche Energieträger
Öl
Gültigkeit
01.11.2025 bis 01.11.2035
Effizienzklasse
H
Endenergiebedarf
250,00 kWh/(m²·a)
Weitere Energiedaten
Energieträger
Öl
Heizungsart
offener Kamin, Zentralheizung
Details
Objektbeschreibung
Eine Immobilie... viele Möglichkeiten...
Am Ende einer Sackgasse im ländlich geprägten Eimersdorf steht diese Interessante Immobilie bestehend aus 2 separate nutzbaren Wohnhäusern mit viel Platz für Großfamilien oder andere Wohnkonzepte mit hohem Platzbedarf.
In den letzten Jahren wurde die Immobilie durchgehend...
Ausstattung
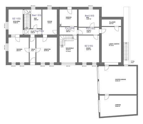
Aufteilung Haus 1:
EG: 3 Zimmer, Küche, Bad
OG: 4 Zimmer, Küche, Balkon
DG: nicht ausgebaut (4 Zimmer, Küche, Bad möglich)
Aufteilung Haus 2:
EG: Diele, Schlafzimmer, Bad, Heizungsraum
OG: Großes Wohn/Esszimmer mit offener Küche, Bad, HWR, Terrasse
DG: 3 Zimmer...
Weitere Informationen
Stichworte
Garage vorhanden, Stellplatz vorhanden, Nutzfläche: 215,00 m², Anzahl der Schlafzimmer: 11, Anzahl der Badezimmer: 4, Anzahl der separaten WCs: 1, Anzahl Balkone: 1, Anzahl Terrassen: 1, Balkon-Terrassen-Fläche: 57,00 m², Bundesland: Saarland, 3 Etagen, modernisiert: 2020, nur...
Anbieter der Immobilie
LBS Immobilien GmbH
Beethovenstraße 35-39, 66111 Saarbrücken

Online-ID: 2mthm5h
Referenznummer: 2025-ARC-00731
Finde Angebote wie dieses
Hier geht es zu unserem Impressum, den Allgemeinen Geschäftsbedingungen, den Hinweisen zum Datenschutz und nutzungsbasierter Online-Werbung.