
Zentro Immobilien
Herr Farid Shayesteh
+49 ···
Nr. anzeigenPreise & Kosten
Kaution
3 Kaltmieten = 3.780,- €
Warum sehe ich diese Anzeige? – Du siehst diese Anzeige basierend auf Ihrer Navigation auf unserer Website und den Suchkriterien, die du verwendet hast.
Lage
Das Objekt liegt im beliebten Stadtteil Maxfeld im direkten Umfeld des Stadtparks und fußläufig zur Alt- und Innenstadt. Es gibt eine sehr gute Anbindung an Bus- und U-Bahn. Im näheren Umfeld sind zahlreiche Einkaufsmöglichkeiten und Ärzte vorhanden.
Die Wohnung
Wohnungslage
2. Geschoss
Bezug
zum 01.01.2026
Wohnanlage
Energie & Heizung
Warum sehe ich diese Anzeige? – Du siehst diese Anzeige basierend auf Ihrer Navigation auf unserer Website und den Suchkriterien, die du verwendet hast.
Energieausweistyp
Bedarfsausweis
Gebäudetyp
Wohngebäude
Baujahr laut Energieausweis
2013
Wesentliche Energieträger
Nah/Fernwärme
Endenergiebedarf
68,10 kWh/(m²·a)
Weitere Energiedaten
Energieträger
Fernwärme
Heizungsart
Zentralheizung
Details
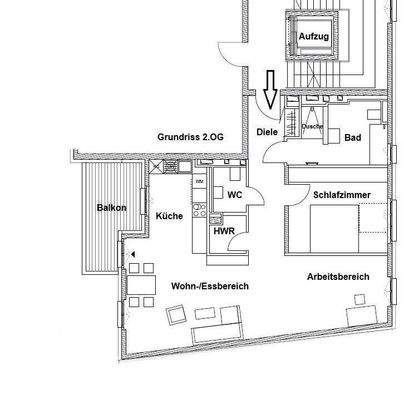
Objektbeschreibung
Diese großzügig geschnittene 2-Zimmerwohnung mit Balkon befindet sich in der exklusiven Wohnanlage ***Nürnberg Leopolds in den Nordstadtgärten*** mit einer sehr ansprechenden Architektur und hauseigener Tiefgarage.
Die Wohnung Baujahr 2015 hat einen sehr schönen und modernen Grundriss mit einer halboffenen Küche. Die...
Ausstattung
- zentraler Flur
- halboffene Küche
- Einbauküche
- Wohn-/ Esszimmer mit Zugang zum hofseitigem Balkon
- Schlafzimmer
- Tageslichtbad mit Badewanne, extra Dusche, Waschbecken, WC, WM-Anschluss
- Gäste-WC mit Handwaschbecken
- HWR/ Abstellkammer
- Fußbodenheizung
- Parkettboden
- Kunstofffenster...
Weitere Informationen
Sonstiges
Sonstiges/ Widerrufsbelehrung
Alle Angaben (insbesondere Mietpreis, Nebenkosten, Flächen- und Maßangaben) sind gemäß den uns vom Eigentümer/ Vermieter erteilten Informationen. Der Grundriss ist nicht maßstabsgetreu und eignet sich nicht zur Maßentnahme. Für die Richtigkeit und Vollständigkeit wird keine...
Dokumente
Anbieter der Immobilie
Online-ID: 2mthn5j
Referenznummer: B31#10..2.3
Finde Angebote wie dieses
Hier geht es zu unserem Impressum, den Allgemeinen Geschäftsbedingungen, den Hinweisen zum Datenschutz und nutzungsbasierter Online-Werbung.