
F.T. Immobilien Hausverwaltungen GmbH
Mathias Krahl
035 ···
Nr. anzeigenPreise & Kosten
Provision für Käufer
3,57 %
inkl. gesetzl. MwSt.
Lage
Von der Konsulstraße aus erreichen Sie in wenigen Minuten fußläufig eine hervorragende Infrastruktur mit vielfältigen Einkaufsmöglichkeiten, Bäckereien, Cafés und Restaurants sowie Dienstleistern und medizinischen Einrichtungen direkt vor der Tür.
Die historische Altstadt mit dem Obermarkt, Museen und kulturellen...
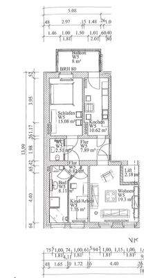
Die Wohnung
Wohnungslage
2. Geschoss
Bezug
sofort
Wohnanlage
Energie & Heizung
Warum sehe ich diese Anzeige? – Du siehst diese Anzeige basierend auf Ihrer Navigation auf unserer Website und den Suchkriterien, die du verwendet hast.
Energieausweis: für diesen Gebäudetyp nicht notwendig
Weitere Energiedaten
Energieträger
Gas
Heizungsart
Zentralheizung
Details
Objektbeschreibung
Eigentumswohnung zum Sofortbezug!
Diese charmante 3-Raumwohnung befindet sich im 2. Obergeschoss eines sanierten Altbaus aus dem Jahr 1895 in zentraler Lage von Görlitz.
Auf ca. 77 m² Wohnfläche überzeugt die Wohnung durch eine strukturierte Raumaufteilung, helle Räume und einen angenehmen Wohnkomfort.
Das...
Ausstattung
Die Wohnung verfügt über einen großzügigen Wohnbereich, ein ruhig gelegenes Schlafzimmer sowie ein weiteres vielseitig nutzbares Zimmer, das sich ideal als Kinder- oder Arbeitszimmer eignet.
Genießen Sie ein zusätzliches Gäste-WC, entspannen Sie auf dem großzügigen Balkon, und profitieren Sie von einem praktischen...
Weitere Informationen
Sonstiges
Alle Angaben beruhen auf uns erteilten Informationen, für deren Richtigkeit wir keine Haftung übernehmen.
Das Angebot ist freibleibend, ein Zwischenverkauf vorbehalten.
Gesetzliche Widerrufsbelehrung: https://ft-immobilien.com/widerrufsbelehrung
Stichworte
Stellplatz vorhanden, Gesamtfläche: 77,00...
Anbieter der Immobilie
F.T. Immobilien Hausverwaltungen GmbH
Hospitalstr. 36 / Berliner Str. 14, 02826 Görlitz
Online-ID: 2mtja5y
Referenznummer: 173253
Finde Angebote wie dieses
Hier geht es zu unserem Impressum, den Allgemeinen Geschäftsbedingungen, den Hinweisen zum Datenschutz und nutzungsbasierter Online-Werbung.