
Immobilien Anita Suffa
Herr Timo Steidtner
091 ···
Nr. anzeigenPreise & Kosten
Provision für Käufer
provisionsfrei
Lage
Die Immobilie befindet sich in zentraler Lage von Burghaslach, einer charmanten Marktgemeinde im Landkreis Neustadt an der Aisch-Bad Windsheim. Für den täglichen Bedarf stehen ein Lebensmittel-Discounter, Bäcker, Metzger und Friseure ebenso zur Verfügung wie eine Apotheke, Allgemeinmediziner und ein Zahnarzt. Auch die...
Die Wohnung
Kategorie
Penthouse
Wohnungslage
2. Geschoss
Bezug
sofort
Derzeitige Nutzung
frei
Wohnanlage
Energie & Heizung
Warum sehe ich diese Anzeige? – Du siehst diese Anzeige basierend auf Ihrer Navigation auf unserer Website und den Suchkriterien, die du verwendet hast.
Energieausweistyp
Bedarfsausweis
Gebäudetyp
Wohngebäude
Baujahr laut Energieausweis
2022
Wesentliche Energieträger
Fernwärme
Gültigkeit
03.03.2023 bis 02.03.2033
Effizienzklasse
A
Endenergiebedarf
34,70 kWh/(m²·a)
Weitere Energiedaten
Energieträger
Fernwärme
Haustyp
Holzhaus
Heizungsart
Fußbodenheizung, Zentralheizung
Details
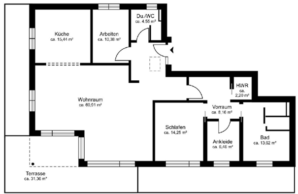
Objektbeschreibung
Diese außergewöhnliche, barrierefreie Penthouse-Wohnung mit ca. 167 m² Wohnfläche vereint modernes Design, luxuriöse Ausstattung und ein Höchstmaß an Komfort. Sie liegt im obersten Geschoss eines 2023 erbauten, sehr gepflegten Mehrfamilienhauses mit zwölf Parteien und überzeugt durch eine harmonische Kombination aus...
Ausstattung
- Fernwärmeheizung (Fußbodenheizung m. einzelnen Raumthermostaten)
- Glasfaseranschluss
- zentrale Wasserenthärtungsanlage
- Personenaufzug
- Kunststofffenster (Schall- und Isolierverglasung, 3-fach verglast), teilweise mit Fliegengittern versehen
- Wohnraumlüftung
- Türsprechanlage
- Elektrische...
Preisinformation
2 Carportplätze
1 Stellplatz, Kaufpreis: 5.000,00 EUR
Weitere Informationen
Stichworte
Serviceleistungen: Hausmeister
Anbieter der Immobilie

Immobilien Anita Suffa
Karl-Eibl-Straße 50a, 91413 Neustadt an der Aisch
Online-ID: 2mtjf5b
Referenznummer: 171 (1/171)
Finde Angebote wie dieses
Hier geht es zu unserem Impressum, den Allgemeinen Geschäftsbedingungen, den Hinweisen zum Datenschutz und nutzungsbasierter Online-Werbung.