

Aurelion & Company GmbH
Frau Alexandra Wissel
017 ···
Nr. anzeigenPreise & Kosten
Provision für Käufer
3,57 % inkl. MwSt.
Lage
Lage
Die Wohnanlage liegt ruhig in einer Sackgasse und dennoch verkehrsgünstig mit kurzen Wegen. Einkaufsmöglichkeiten sind fußläufig erreichbar, der Stadtring ist schnell angebunden und ermöglicht ein zügiges Verlassen der Stadt. Die Fasanerie und das Schönthal befinden sich in kurzer Distanz und ergänzen die Lage um...
Das Haus
Kategorie
Doppelhaushälfte
Baujahr
2013
Energie & Heizung
Warum sehe ich diese Anzeige? – Du siehst diese Anzeige basierend auf Ihrer Navigation auf unserer Website und den Suchkriterien, die du verwendet hast.
Energieausweistyp
Verbrauchsausweis
Gebäudetyp
Wohngebäude
Baujahr laut Energieausweis
2013
Wesentliche Energieträger
PELLET
Gültigkeit
bis 11.07.2031
Effizienzklasse
B
Endenergieverbrauch
68,60 kWh/(m²·a)
Weitere Energiedaten
Haustyp
Massivhaus
Energieträger
Pellets
Heizungsart
Fußbodenheizung
Details
Objektbeschreibung
Stilvoll. Durchdacht. Zeitlos.
Diese moderne Doppelhaushälfte aus dem Jahr 2013 überzeugt durch klare Architektur, hochwertige Bauausführung und ein Raumkonzept, das sich konsequent an den Bedürfnissen anspruchsvoller Familien orientiert.
Auf drei Ebenen verbindet das Haus Großzügigkeit mit Energieeffizienz und...
Ausstattung
Eckdaten
Haustyp: Doppelhaushälfte
Baujahr: 2013
Grundstück: ca. 310 m²
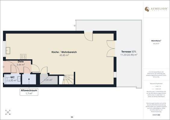
Wohnfläche: 155,7 m²
Zimmer: 5
Schlafzimmer: 4
Badezimmer: 2 zzgl. Gäste-WC
Etagen: Erdgeschoss, 1. Obergeschoss, ausgebautes Dachgeschoss
Verfügbar ab: Januar 2026
Architektur & Ausstattung:
Die Immobilie...
Preisinformation
1 Carportplatz
Weitere Informationen
Sonstiges
Aurelion & Company wurde exklusiv vom Eigentümer mit der Vermarktung dieser Immobilie beauftragt. Gerne stehen wir Ihnen für Ihre Rückfragen zur Verfügung. Für eine Besichtigung vereinbaren Sie mit uns einen Termin.
Alle Angaben stammen vom Eigentümer bzw. Dritten. Diese wurden von uns sorgfältig...
Anbieter der Immobilie

Online-ID: 2mtjz5q
Referenznummer: ML559
Finde Angebote wie dieses
Hier geht es zu unserem Impressum, den Allgemeinen Geschäftsbedingungen, den Hinweisen zum Datenschutz und nutzungsbasierter Online-Werbung.