
Mayer & Dau Immobilien GmbH
Frau Evin Turgut
004 ···
Nr. anzeigenPreise & Kosten
Provision für Käufer
3,57 % inkl. Mwst
Lage
Die Wohung befindet sich in Bremen-Mahndorf.
Die Stadt Bremen umfasst ca. 550.000 Einwohner und ist damit die Hauptstadt des Bundeslands "Freie Hansestadt Bremen". Durch die exzellente, internationale Ex- und Import-Anbindung, der Bundeswasserstraße (Weser) und des Bremer Flughafens, wurde Bremen 2005 als Metropolregion...
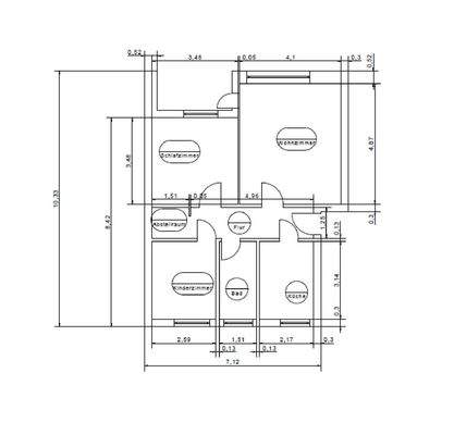
Die Wohnung
Wohnungslage
3. Geschoss
Wohnanlage
Energie & Heizung
Warum sehe ich diese Anzeige? – Du siehst diese Anzeige basierend auf Ihrer Navigation auf unserer Website und den Suchkriterien, die du verwendet hast.
Energieausweistyp
Verbrauchsausweis
Gebäudetyp
Wohngebäude
Baujahr laut Energieausweis
1970
Wesentliche Energieträger
GAS
Gültigkeit
bis 29.10.2027
Effizienzklasse
C
Endenergieverbrauch
79,90 kWh/(m²·a)
Details
Objektbeschreibung
Wir bieten Ihnen eine 3-Zimmer-Eigentumswohnung mit ca. 62 m² Wohnfläche im 3. Obergeschoss eines gepflegten Mehrfamilienhauses, die ab sofort zum Verkauf steht. Die Immobilie eignet sich ideal sowohl zur Eigennutzung als auch als attraktive Kapitalanlage.
Über das gepflegte Treppenhaus erreichen Sie das 3...
Weitere Informationen
Stichworte
Anzahl der Schlafzimmer: 2, Anzahl Balkone: 1
Anbieter der Immobilie
Mayer & Dau Immobilien GmbH
Am Hogen Hagen 31, 26160 Bad Zwischenahn
Online-ID: 2mtlw5u
Referenznummer: 9260
Finde Angebote wie dieses
Hier geht es zu unserem Impressum, den Allgemeinen Geschäftsbedingungen, den Hinweisen zum Datenschutz und nutzungsbasierter Online-Werbung.