
Crozilla.com
Eurovilla
+38 ···
Nr. anzeigenPreise & Kosten
Provision für Käufer
Bitte beachte, das Angebot kann bei Vertragsabschluss die Zahlung einer Provision beinhalten. Weitere Informationen erhältst Du vom Anbieter.
Die Immobilie
Zu diesem Angebot wurden vom Anbieter keine weiteren Daten hinterlegt. Für weitere Informationen bitte den Anbieter kontaktieren.
Nach Informationen fragenDetails
Objektbeschreibung
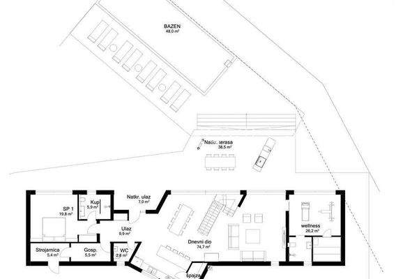
Na izuzetnoj lokaciji u mirnom okruzenju mjesta Buzet prodaje se gradevinsko zemljiste povrsine 2.122 m², idealno za izgradnju moderne vile s brojnim sadrzajima za luksuzan zivot ili turisticki najam.Zemljiste dolazi s gotovim idejnim projektom ekskluzivne kuce povrsine cca 250 m² koja se proteze na dvije etaze, uz bazen i...
Weitere Informationen
Stichworte
Wohnfläche: 2.122,00 m², 1 Etagen
Anbieter der Immobilie
Crozilla.com
Nova cesta 60, 10000 ZAGREB
Online-ID: 2mtmt5s
Referenznummer: 17542410_9
Finde Angebote wie dieses
Hier geht es zu unserem Impressum, den Allgemeinen Geschäftsbedingungen, den Hinweisen zum Datenschutz und nutzungsbasierter Online-Werbung.