
Max Aicher GmbH & Co. KG
Firma Max Aicher Projekt Richard-Strauß-Straße GmbH & Co.KG
+49 ···
Nr. anzeigenPreise & Kosten
Provision für Käufer
provisionsfrei
Lage
Die Innenstadt Freilassing mit seiner belebten Fußgängermeile, Einkaufsstraßen und Gastronomie lädt zum Bummeln und Shoppen ein. Einkaufsmöglichkeiten des täglichen Bedarfs, Dienstleister, Schulen, Kindergärten gehören zum unmittelbaren Umfeld. Die ärztliche Versorgung ist gegeben, auch durch das benachbarte...
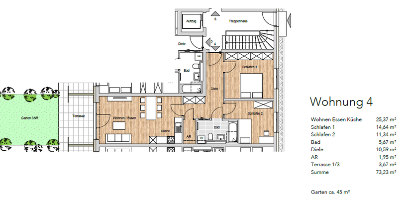
Die Wohnung
Wohnungslage
Erdgeschoss
Bezug
25
Wohnanlage
Energie & Heizung
Warum sehe ich diese Anzeige? – Du siehst diese Anzeige basierend auf Ihrer Navigation auf unserer Website und den Suchkriterien, die du verwendet hast.
Energieausweistyp
Bedarfsausweis
Gebäudetyp
Wohngebäude
Wesentliche Energieträger
Strom
Effizienzklasse
A+
Endenergiebedarf
15,10 kWh/(m²·a)
Weitere Energiedaten
Haustyp
KfW 55
Heizungsart
Fußbodenheizung, Luft-/Wasser-Wärmepumpe
Details
Objektbeschreibung
Im Norden Freilassings entsteht das Projekt RichArtStrauss. Hier werden ab Frühjahr 2022 komfortable Eigentumswohnungen mit gehobener Ausstattung errichtet. Terrassen und Gärten, großzügige Balkone und in 2 Wohnungen Dachterrassen sind nach Südwesten ausgerichtet und laden zum Verweilen ein. Alle Wohnungen und die Tiefgarage...
Ausstattung
Moderne Ausstattungen der Bäder und Böden mit edlem Design
Tiefgarage mit überbreiten und teils barrierefreien Stellplätzen und Stromanschluss
Überdachte Fahrradabstellplätze
Einladende Treppenhäuser mit Feinsteinzeug
Aufzug in jede Etage
Moderne effiziente Heizung
Großflächige Fenster und...
Weitere Informationen
Besichtigungstermine
Besichtigungstermin nach Vereinbarung möglich
Dokumente
Anbieter der Immobilie
Max Aicher GmbH & Co. KG
Teisenbergstr. 7, 83395 Freilassing
Online-ID: 2mtns52
Referenznummer: 4
Finde Angebote wie dieses
Hier geht es zu unserem Impressum, den Allgemeinen Geschäftsbedingungen, den Hinweisen zum Datenschutz und nutzungsbasierter Online-Werbung.