

TECNOCASA LAZISE Affiliato: La Polena Srl
Frau Dreer
045 ···
Nr. anzeigenPreise & Kosten
Provision für Käufer
Bitte beachte, das Angebot beinhaltet bei Vertragsabschluss die Zahlung einer Provision. Weitere Informationen erhältst Du vom Anbieter.
Das Haus
Geschosse
1 Geschoss
Baujahr
2025
Derzeitige Nutzung
frei
Energie & Heizung
Warum sehe ich diese Anzeige? – Du siehst diese Anzeige basierend auf Ihrer Navigation auf unserer Website und den Suchkriterien, die du verwendet hast.
Weitere Energiedaten
Energieträger
Elektro
Heizungsart
Fußbodenheizung
Details
Weitere Informationen
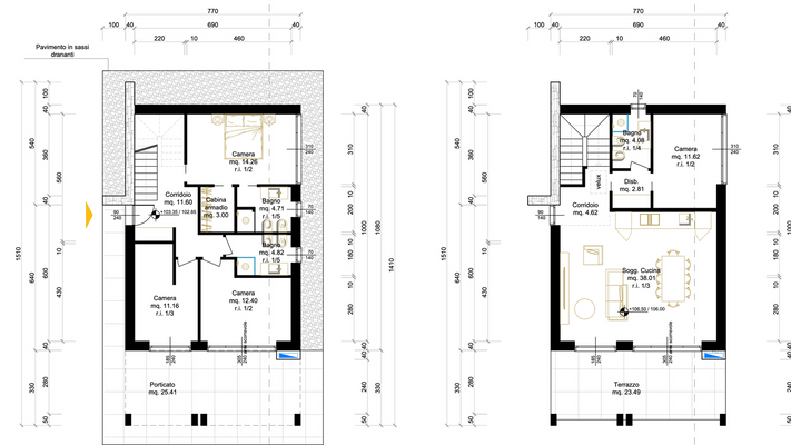
Neue Ville mit Seeblick
LAZISE – In einem exklusiven geschlossenen und reservierten Bereich, der direkt mit dem Seeufer verbunden ist, schlagen wir eine neue Intervention vor, die den Bau von sieben Einzelvillen mit privaten Schwimmbädern umfasst.
Die Villen werden mit modernsten umweltfreundlichen Bautechnologien...
Anbieter der Immobilie
TECNOCASA LAZISE Affiliato: La Polena Srl
Via Rubinare, 8, 37017 LAZISE

Online-ID: 2mtrf5z
Finde Angebote wie dieses
Hier geht es zu unserem Impressum, den Allgemeinen Geschäftsbedingungen, den Hinweisen zum Datenschutz und nutzungsbasierter Online-Werbung.