Schwabenhaus Ingolstadt - Samka Graf - Handelsvertretung für die Schwabenhaus GmbH

Samka Graf

Eigenheim und Nebenkosten sparen

€ 390.791
Kaufpreis
122,10 m²
Wohnfläche ca.
4
Zimmer
382 m²
Grundstücksfl. ca.

Der Anbieter dieses Objekts hat gegenüber der AVIV Germany GmbH als Betreiber dieses Online-Marktplatzes erklärt, nicht als Unternehmer im Sinne des § 1 KSchG zu handeln. Die im Verbraucherschutzrecht der Union verankerten Verbraucherrechte (insbesondere Informationspflichten und Rücktritts- bzw. Widerrufsrechte) finden auf den Vertrag zwischen dem Anbieter des Objekts und Ihnen (dem Interessenten) keine Anwendung.

Provisionsfrei
Gewerblicher Anbieter

Der Anbieter dieses Objekts hat gegenüber der AVIV Germany GmbH als Betreiber dieses Online-Marktplatzes erklärt, als Unternehmer im Sinne des § 1 KSchG zu handeln.

AdresseStraße nicht freigegeben
78576 Emmingen-Liptingen 
Auf Karte ansehen

Preise & Kosten

Kaufpreis € 390.791

Provision für Käufer

provisionsfrei

Lage

Emmingen-Liptingen liegt auf der Hegaualb, der südlichen Abdachung der Schwäbischen Alb, und damit südlich des Oberlaufs der Donau.
Die Gemeinde Emmingen-Liptingen ist eine leistungsstarke Gemeinde im ländlichen Raum zwischen Tuttlingen und Bodensee-Hegau.
Sie verfügt über eine gute Verkehrsanbindung, da sie nahe der...

Mehr anzeigen

Das Haus

Kategorie

Einfamilienhaus

  • Zustand: Neubau, projektiert
  • Gäste-WC

Energie & Heizung

Weitere Energiedaten

Heizungsart

Fußbodenheizung

Details

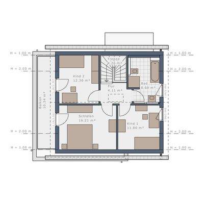
Objektbeschreibung

Bei diesem Angebot handelt es sich um einen Komplettpreis, welcher das Haus mit Grundstück beinhaltet. Das Haus kann Ihren Wünschen entsprechend - gemäß Bebauungsplan - noch umgestaltet werden. Mit oder ohne Keller (Aufpreis). Ebenso ist Flexibilität bei den Grundrissen gegeben: Treppe drehen, Küche von einer Seite des Raumes...

Mehr anzeigen

Ausstattung

Neben kurzen Bauzeiten, innovativer Haustechnik, attraktiver Architektur und hochwertiger Manufaktur-Qualität bietet Ihnen das angebotene Schwabenhaus im "Green-Edition" All-Inclusive-Paket folgende Mehr-Werte:

- Bodenplatte inkl. Effizienzhaus 55 Perimeter-Dämmung unterhalb der Bodenplatte sowie stirnseitig
-...

Mehr anzeigen

Weitere Informationen

Sonstiges
Das Haus ist projektiert inkl. Grundstück. Das Grundstück wird in Kommission angeboten bzw. direkt von Dritten verkauft. Daher kann der o.g. Preis aufgrund aktueller Marktsituationen schwanken.

Die Bauabwicklung kann kurzfristig nach Grundstückserwerb begonnen werden. Bilder zeigen möglicherweise...

Mehr anzeigen

Anbieter der Immobilie

Partner
user

Samka Graf

Dein Ansprechpartner

Anbieter-Website Anbieter-Profil Anbieter-Impressum

Online-ID: 2mtrr5s

Referenznummer: SH-361842-Emmingen-Liptin

Finde Angebote wie dieses

imageimageimage

Hier geht es zu unserem Impressum, den Allgemeinen Geschäftsbedingungen, den Hinweisen zum Datenschutz und nutzungsbasierter Online-Werbung.