
ohne-makler.net - Immobilien selbst vermarkten
Privat vom Eigentümer
Kontaktiere den Anbieter schriftlich, es ist keine Telefonnummer hinterlegt.
Preise & Kosten
Provision für Käufer
provisionsfrei
Lage
Erlangen-Büchenbach zählt zu den beliebtesten Wohnlagen der Stadt - grün, ruhig und familienfreundlich.
Kitas, Schulen, Spielplätze und Einkaufsmöglichkeiten (Rewe, Lidl, Rossmann, Apotheke) und öffentliche Verkehrsmittel liegen nur wenige Gehminuten entfernt.
Die Innenstadt, der Siemens-Campus sowie Adidas, Puma und...
Die Wohnung
Kategorie
Maisonette
Wohnungslage
Erdgeschoss
Bezug
15.04.2026
Wohnanlage
Energie & Heizung
Warum sehe ich diese Anzeige? – Du siehst diese Anzeige basierend auf Ihrer Navigation auf unserer Website und den Suchkriterien, die du verwendet hast.
Energieausweistyp
Bedarfsausweis
Gebäudetyp
Wohngebäude
Effizienzklasse
A
Endenergiebedarf
31,00 kWh/(m²·a)
Weitere Energiedaten
Energieträger
Pellets
Heizungsart
Fußbodenheizung
Details
Objektbeschreibung
-- Wohnen wie im Reiheneckhaus--
Diese hochwertige Maisonettewohnung vereint den Komfort einer modernen Eigentumswohnung mit dem Wohngefühl eines Reiheneckhauses - ideal für Paare und Familien.
In ruhiger, familienfreundlicher Lage von Erlangen-Büchenbach bietet das 2018 errichtete Effizienzhaus (KfW 40) auf 114 m²...
Ausstattung
Terrasse, Garten, Keller, Vollbad, Duschbad, Sauna, Einbauküche, Fliesen
Bemerkungen:
Highlights:
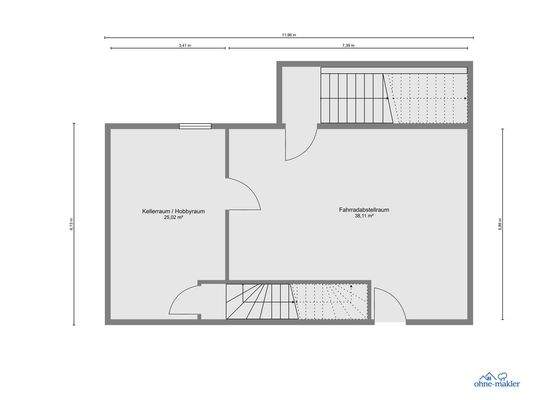
* 114 m² Wohnfläche + 25 m² wohnraumnaher Keller (gefliest, belüftet, mit Fenster)
* 60 m² Garten inkl. 15 m² Terrasse mit Südausrichtung
* Zwei Bäder mit bodentiefer Dusche, Hauptbad ausgestattet mit...
Preisinformation
1 Stellplatz
Weitere Informationen
Sonstiges
Heizungsart: Fußbodenheizung
Energieträger: Holzpellets
Makleranfragen nicht erwünscht. Nach § 7 UWG sind unaufgeforderte Kontaktaufnahmen durch Makler ohne ausdrückliche Einwilligung des Empfängers verboten!
ohne-makler (OM) ist weder Anbieter noch Vermittler der Immobilie. OM betreibt eine...
Anbieter der Immobilie
ohne-makler.net - Immobilien selbst vermarkten
Humboldtstr. 25 A, 21509 Glinde
Privat vom Eigentümer
Dein Ansprechpartner
Kontaktiere den Anbieter schriftlich, es ist keine Telefonnummer hinterlegt.
Online-ID: 2mtrs55
Referenznummer: 403834
Finde Angebote wie dieses
Hier geht es zu unserem Impressum, den Allgemeinen Geschäftsbedingungen, den Hinweisen zum Datenschutz und nutzungsbasierter Online-Werbung.