team19 Immobilien GmbH

Herr Christoph Kolar

Kolo 35 - Klimatisierte Dachgeschoss-Wohnung mit 2 Terrassen nahe SCN, Denglerpark und Prager Straße! - Ab sofort!

€ 997,01
Gesamtmiete inkl. BK
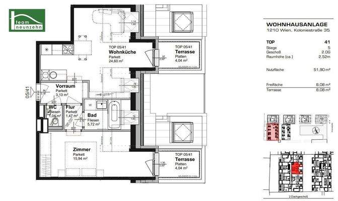
51,90 m²
Wohnfläche ca.
2
Zimmer

Der Anbieter dieses Objekts hat gegenüber der AVIV Germany GmbH als Betreiber dieses Online-Marktplatzes erklärt, nicht als Unternehmer im Sinne des § 1 KSchG zu handeln. Die im Verbraucherschutzrecht der Union verankerten Verbraucherrechte (insbesondere Informationspflichten und Rücktritts- bzw. Widerrufsrechte) finden auf den Vertrag zwischen dem Anbieter des Objekts und Ihnen (dem Interessenten) keine Anwendung.

Gewerblicher Anbieter

Der Anbieter dieses Objekts hat gegenüber der AVIV Germany GmbH als Betreiber dieses Online-Marktplatzes erklärt, als Unternehmer im Sinne des § 1 KSchG zu handeln.

AdresseKoloniestraße 35
1210 Wien 
(Floridsdorf)
Auf Karte ansehen

Preise & Kosten

Gesamtmiete

inkl. Betriebskosten

€ 997,01
Nettokaltmiete € 805,16 Betriebskosten € 101,21

Kaution

3 Bruttomonatsmieten

Provision für Mieter

Gemäß Erstauftraggeberprinzip bezahlt der Abgeber die Provision.

Lage

Bahnhof Jedlersdorf, Shopping Center Nord, Denglerpark

Die Wohnung

Wohnungslage

5. Geschoss

Bezug

ab sofort

  • Bad mit Fenster und Wanne
  • Terrasse
  • Einbauküche
  • Böden: Fliesenboden, Parkett
  • Ausstattung: neuwertig

Wohnanlage

  • Baujahr: 2021
  • Zustand: Neubau
  • Personenaufzug

Energie & Heizung

Heizwärmebedarf (HWB)

B

30,01 kWh/(m²·a)

Gesamtenergieeffizienz (fGEE)

A

0,77

Weitere Energiedaten

Energieträger

Gas

Heizungsart

Fußbodenheizung

Details

Objektbeschreibung

Kolo 35 - Modernes Wohnen beim FAC-Platz nahe S-Bahn Jedlersdorf, Denglerpark und SCN

Erst 2020/2021 wurde dieses hochmoderne Gebäude im Bezirksteil Jedlersdorf nahe dem dortigen S-Bahnhof, dem Denglerpark und dem bekannten FAC-Platz errichtet.

Die Wohnhausanlage teilt sich auf 6 Stiegen mit Wohnungen...

Mehr anzeigen

Preisinformation

Nettokaltmiete: 805,16 EUR

Weitere Informationen

Stichworte
Ost-Balkon/Terrasse, Fahrradraum, Rolladen, Nutzfläche: 59,98 m², Gesamtfläche: 59,98 m², Freifläche: 8,08 m², Anzahl der Badezimmer: 1, Anzahl der separaten WCs: 1, Anzahl Terrassen: 2, Balkon-Terrassen-Fläche: 8,08 m², Bundesland: Wien, 7 Etagen, Wohnungsnr.: 41

Anbieter der Immobilie

Partner

team19 Immobilien GmbH

im Durchschnitt  4,20  Sterne
(bei 2 Bewertungen)

Handelskai 94-96/44. Stock, 1200 BRIGITTENAU

user

Herr Christoph Kolar

Dein Ansprechpartner

Anbieter-Website Anbieter-Profil Anbieter-Impressum

Online-ID: 2mtrx55

Referenznummer: OBGC20251103131207527eeb513b591

Finde Angebote wie dieses

imageimageimage

Hier geht es zu unserem Impressum, den Allgemeinen Geschäftsbedingungen, den Hinweisen zum Datenschutz und nutzungsbasierter Online-Werbung.