
EURAG GmbH
Herr Klaus Berg
091 ···
Nr. anzeigenPreise & Kosten
Kaution
3 Bruttokaltmieten
Provision für Mieter
provisionsfrei
Warum sehe ich diese Anzeige? – Du siehst diese Anzeige basierend auf Ihrer Navigation auf unserer Website und den Suchkriterien, die du verwendet hast.
Lage
Markt Schnaittach gehört zum Nürnberger Landkreis und ist ein bekannter Erholungsort in Mittelfranken.
In wenigen Autominuten erreicht man die Autobahnen A9 und A3, über die man in ca. 30 Fahrminuten die Nürnberger Innenstadt oder auch das Erlanger Zentrum erreicht.
Auch an die öffentlichen Verkehrsnetze (Bus und Bahn)...
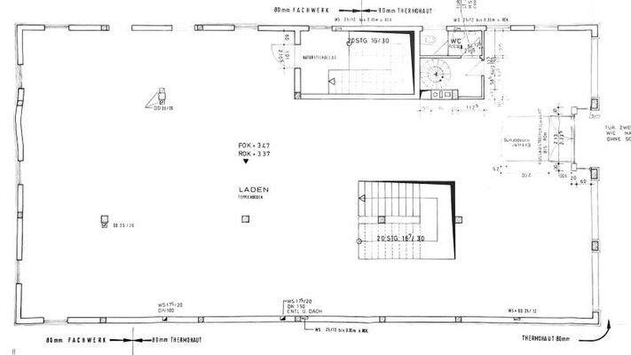
Die Ladenfläche
Baujahr
1993
Bezug
nach Absprache
1. Geschoss
Details
Objektbeschreibung
Die angebotene Fläche befindet sich im 1. Obergeschoss in eines gepflegten Geschäftshauses.
Das Gebäude wurde ca. 1993 errichtet.
Das Gebäude steht nicht unter Denkmalschutz auch wenn das Fachwerk dies vermuten lässt. Es handelt sich hierbei um ein vorgeblendetes Fachwerk
Die Einheit befindet sich zwar im...
Weitere Informationen
Provision
provisionsfrei
Kaution
3 Bruttokaltmieten
Bezugstermin
nach Absprache
Anbieter der Immobilie
EURAG GmbH
Fichtestr. 26, 90489 Nürnberg
Online-ID: 2mtsd5b
Referenznummer: 5442
Finde Angebote wie dieses
Hier geht es zu unserem Impressum, den Allgemeinen Geschäftsbedingungen, den Hinweisen zum Datenschutz und nutzungsbasierter Online-Werbung.