Living Fertighaus GmbH - Claudia Jäger

Frau Claudia Jäger

Barrierefreier Bungalow - Ihr komfortables Zuhause!

€ 569.000
Kaufpreis
110 m²
Wohnfläche ca.
4
Zimmer
230 m²
Grundstücksfl. ca.

Der Anbieter dieses Objekts hat gegenüber der AVIV Germany GmbH als Betreiber dieses Online-Marktplatzes erklärt, nicht als Unternehmer im Sinne des § 1 KSchG zu handeln. Die im Verbraucherschutzrecht der Union verankerten Verbraucherrechte (insbesondere Informationspflichten und Rücktritts- bzw. Widerrufsrechte) finden auf den Vertrag zwischen dem Anbieter des Objekts und Ihnen (dem Interessenten) keine Anwendung.

Provisionsfrei
Gewerblicher Anbieter

Der Anbieter dieses Objekts hat gegenüber der AVIV Germany GmbH als Betreiber dieses Online-Marktplatzes erklärt, als Unternehmer im Sinne des § 1 KSchG zu handeln.

AdresseStraße nicht freigegeben
73345 Hohenstadt 
Auf Karte ansehen

Preise & Kosten

Kaufpreis € 569.000

Provision für Käufer

provisionsfrei

Lage

Das angebotene Grundstück befindet sich in Hohenstadt und ist im Preis einkalkuliert (ohne Kaufneben - und evtl. Maklerkosten)

Das Grundstück erwerben Sie direkt vom Eigentümer. Wir treten nur als Vermittler dieses Grundstücks auf, ein Verkauf erfolgt direkt über den entsprechenden Verkäufer und steht in keinem...

Mehr anzeigen

Das Haus

Kategorie

Bungalow

  • Zustand: Erstbezug, Neubau
  • voll unterkellert

Energie & Heizung

A+
A
B
C
D
E
F
G
H
0 25 50 75 100 125 150 175 200 225 250 +

Energieausweistyp

Verbrauchsausweis

Gebäudetyp

Wohngebäude

Wesentliche Energieträger

Strom

Effizienzklasse

A+

Endenergieverbrauch

18,00 kWh/(m²·a)

Weitere Energiedaten

Haustyp

KfW 55

Heizungsart

Luft-/Wasser-Wärmepumpe

Details

Objektbeschreibung

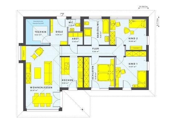
SOLUTION 110 - Bungalow mit Walmdach und Keller

Willkommen in Ihrem neuen, barrierefreien Bungalow! Dieser moderne Neubau bietet Ihnen ein Leben in Komfort und Unabhängigkeit, ideal für alle Generationen.

Der lichtdurchflutete Bungalow überzeugt durch eine durchdachte Raumaufteilung, die Ihnen viel Platz für...

Mehr anzeigen

Ausstattung

Living Haus bietet Ihnen umfassende Sicherheitsgarantien ab dem Moment Ihrer Auftragsbestätigung - darunter eine 18-monatige Festpreisgarantie und essenzielle Bauversicherungen wie Bauherrenhaftpflicht sowie Bauleistungs-, Wohngebäude- und Bauhelfer-Unfallversicherung. Diese garantieren finanzielle Sicherheit während des...

Mehr anzeigen

Weitere Informationen

Sonstiges
Alle Angaben wurden nach bestem Wissen und Gewissen erstellt. Grundlage der vorstehenden Angaben sind Informationen, welche uns seitens Dritter zur Verfügung gestellt werden. Eine Gewähr für die Richtigkeit der Angaben kann daher nicht übernommen werden. Irrtum und Zwischenverkauf vorbehalten.

Buchen Sie...

Mehr anzeigen

Anbieter der Immobilie

Partner

Living Fertighaus GmbH - Claudia Jäger

Höhenstraße, 70736 Fellbach

user

Frau Claudia Jäger

Dein Ansprechpartner

Anbieter-Website Anbieter-Profil Anbieter-Impressum

Online-ID: 2mtuk5n

Referenznummer: 30508-7162

Finde Angebote wie dieses

imageimageimage

Hier geht es zu unserem Impressum, den Allgemeinen Geschäftsbedingungen, den Hinweisen zum Datenschutz und nutzungsbasierter Online-Werbung.