

DaMa Immobilien GbR
Frau Daniela Marinkovic
041 ···
Nr. anzeigenPreise & Kosten
Provision für Käufer
2,5% inkl. MwSt
Lage
Der Deinster Ortsteil Helmste befindet sich in der Samtgemeinde Fredenbeck. Innerhalb von nur wenigen Autominuten erreichen Sie die Anschlussstelle der A26 und die S-Bahnanbindung in Horneburg, die direkt zum Hamburger Hauptbahnhof führt. Der angrenzende Rüstjer Forst ist bei Naturliebhabern ein beliebtes Ausflugsziel. Der...
Das Haus
Kategorie
Einfamilienhaus
Baujahr
1987
Bezug
nach Absprache
Energie & Heizung
Warum sehe ich diese Anzeige? – Du siehst diese Anzeige basierend auf Ihrer Navigation auf unserer Website und den Suchkriterien, die du verwendet hast.
Energieausweistyp
Verbrauchsausweis
Gebäudetyp
Wohngebäude
Baujahr laut Energieausweis
1987
Wesentliche Energieträger
Heizöl
Gültigkeit
13.10.2025 bis 12.10.2035
Effizienzklasse
F
Endenergieverbrauch
175,30 kWh/(m²·a) - Warmwasser enthalten
Weitere Energiedaten
Haustyp
Massivhaus
Energieträger
Öl
Heizungsart
Fußbodenheizung
Details
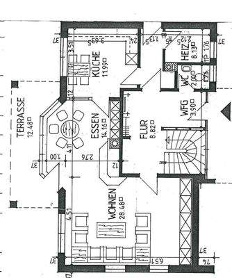
Objektbeschreibung
Dieses traumhafte Einfamilienhaus lässt keine Wünsche offen und bietet viele Möglichkeiten zur freien Entfaltung. Der gut durchdachte Grundriss des Hauses ist großzügig, familienfreundlich und individuell nutzbar. Ob Homeoffice, Hobbys, Kinder, Haustiere - dieses Haus schafft ein angenehmes Wohnambiente mit vielen...
Weitere Informationen
Besichtigungstermine
Den besten Eindruck dieser eindrucksvollen Immobilie erhalten Sie bei einem persönlichen Besichtigungstermin vor Ort. Wir freuen uns auf Ihre Kontaktaufnahme.
Bitte stellen Sie erst eine Anfrage über das Immobilienportal und hinterlassen Ihre Kontaktdaten. Wir können Ihre Anfrage sonst nicht...
Anbieter der Immobilie
DaMa Immobilien GbR
Im Mühlenfeld 23, 21717 Fredenbeck

Online-ID: 2mtus5c
Finde Angebote wie dieses
Hier geht es zu unserem Impressum, den Allgemeinen Geschäftsbedingungen, den Hinweisen zum Datenschutz und nutzungsbasierter Online-Werbung.