
Crozilla.com
Splitski Vali
+38 ···
Nr. anzeigenPreise & Kosten
Provision für Käufer
Bitte beachte, das Angebot kann bei Vertragsabschluss die Zahlung einer Provision beinhalten. Weitere Informationen erhältst Du vom Anbieter.
Die Immobilie
Zu diesem Angebot wurden vom Anbieter keine weiteren Daten hinterlegt. Für weitere Informationen bitte den Anbieter kontaktieren.
Nach Informationen fragenDetails
Objektbeschreibung
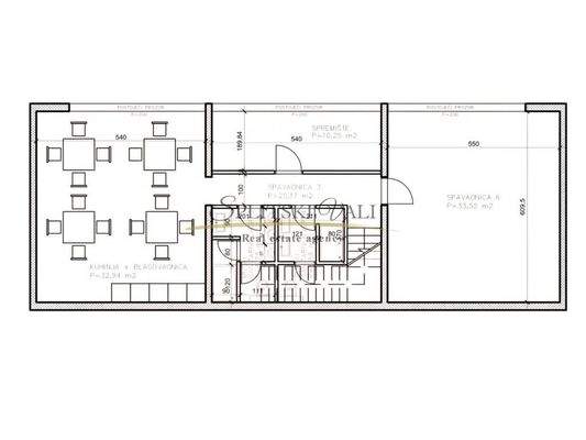
Ekskluzivno na trzistu, posredujemo u prodaji Hostela na odlicnoj lokaciji u Splitu. Hostel se nalazi 850 m od mora, 1 km od centra grada (17 min hoda). Povrsina hostela iznosi 300 m2 te je podijeljen na dvije etaze. Smjestajni kapacitet hostela je 44 kreveta, s dozvolom. Na gornjoj etazi, odnosno prizemlju nalazi se...
Weitere Informationen
Stichworte
Wohnfläche: 300,00 m², 1 Etagen
Anbieter der Immobilie
Crozilla.com
Nova cesta 60, 10000 ZAGREB
Online-ID: 2mtv55m
Referenznummer: 18695101_1
Finde Angebote wie dieses
Hier geht es zu unserem Impressum, den Allgemeinen Geschäftsbedingungen, den Hinweisen zum Datenschutz und nutzungsbasierter Online-Werbung.